15 St Peters Lane, Leeton NSW 2705
Property Details
Vacant Land
Description
Property Details: • Type: Vacant Land
• Bedrooms: 0 • Bathrooms: 0
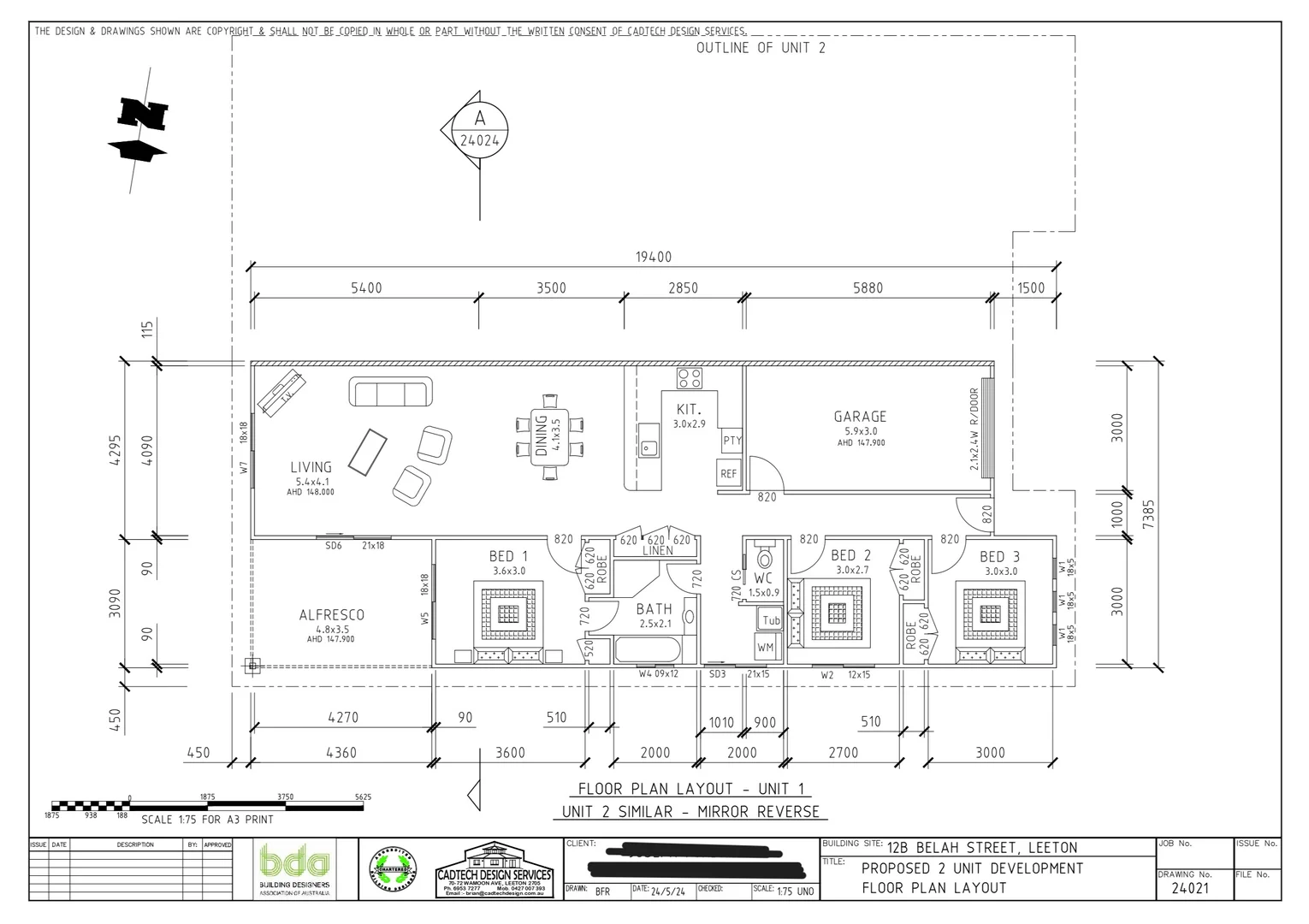
Description: DA-approved and ready to go, this outstanding 448m² block offers approved plans for 2 x 3-bedroom units, each featuring a functional bathroom with convenient 2-way access. Whether you choose to build and sell on completion or retain the properties as a smart long-term investment, the possibilities here are impressive. Ideally located just a short walk from the town centre, this property enjoys easy access to all local amenities. The rear portion of the original block is being offered for sale, with two existing units already positioned at the front facing Belah Street. A major advantage is that provisions for sewerage and power were completed during the original development, making the construction of 15B St Peters Lane a far more cost-effective project. Much of the expensive groundwork has already been done and paid for, adding even more value to this opportunity. With Leeton's rental vacancy rate currently sitting at approximately 0.55%, demand for rental properties remains exceptionally strong, offering the potential for an excellent return on investment once built. For more information or to view the DA-approved plans, please contact Julie on 0409 224 459. *All of the information contained in this document is from sources the Agent and Vendor believe to be reliable; however, we cannot guarantee its accuracy. Prospective purchasers are advised to carry out their own investigations. *
Location
Address
15 St Peters Lane, Leeton NSW 2705
City
Leeton
Features and Finishes
None
Legal Notice
Our comprehensive database is populated by our meticulous research and analysis of public data. MirrorRealEstate strives for accuracy and we make every effort to verify the information. However, MirrorRealEstate is not liable for the use or misuse of the site's information. The information displayed on MirrorRealEstate.com is for reference only.