150 Woodstock Street, Maryborough QLD 4650
Property Details
2
1
House
Description
Property Details: • Type: House
• Bedrooms: 2 • Bathrooms: 1
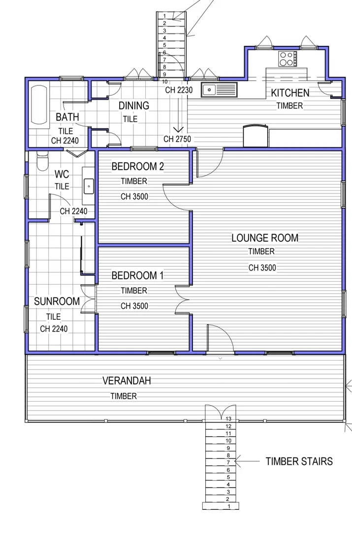
Description: This highset colonial style home has been tastefully renovated and is beautifully presented. Featuring 2 bedrooms, spacious air-conditioned dining and lounge, functional dine-in kitchen, sunroom, double shed with workshop, double carport, solar, fully fenced 1040m2 (approx.) block within close proximity to hospital, schools, shops and sporting facilities. Property sold with plans and engineering reports for raising the home are included. This will result in a 5 bedroom, 2 bathroom, 2 lounge home with internal staircase. Features: 2 Bedrooms - Master with A/C Spacious lounge/dining with A/C Open plan kitchen/dining with A/C Sleepout Two-way bathroom Polished timber floors throughout Ceiling fans Full length front veranda 6.6kW solar system Extensive under-house storage Powered double shed with workshop Double carport Concrete driveway Fully fenced 1,040m2 (approx.) block Inspections by calling Greg Caulley # Disclaimer. We make no representation or warranty as to the accuracy, reliability or completeness of the information supplied relating to the property.
Location
Address
150 Woodstock Street, Maryborough QLD 4650
City
Maryborough
Features and Finishes
None
Legal Notice
Our comprehensive database is populated by our meticulous research and analysis of public data. MirrorRealEstate strives for accuracy and we make every effort to verify the information. However, MirrorRealEstate is not liable for the use or misuse of the site's information. The information displayed on MirrorRealEstate.com is for reference only.