154 Main Street, Romsey VIC 3434
Property Details
3
1
House
Description
Property Details: • Type: House
• Bedrooms: 3 • Bathrooms: 1
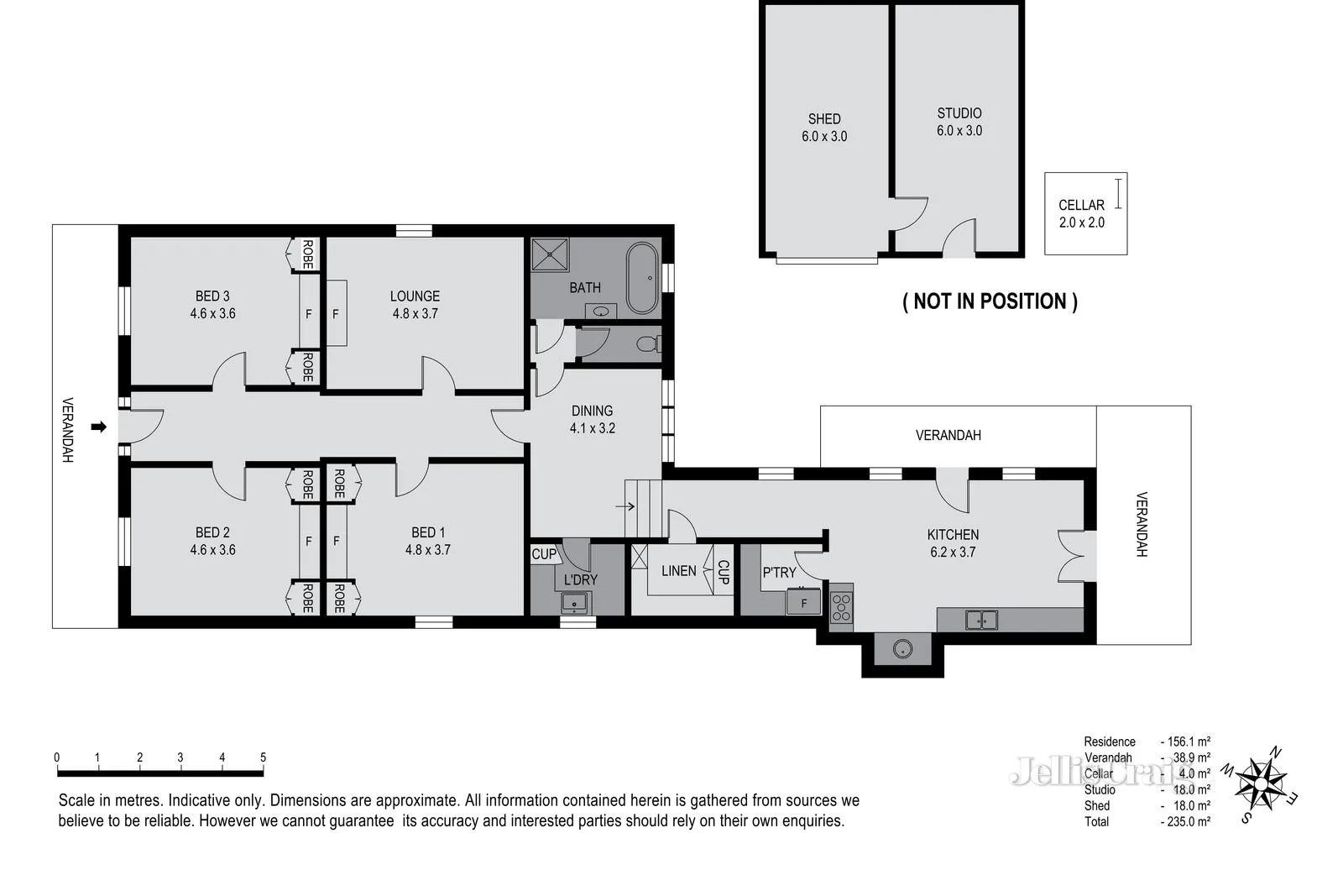
Description: An incredibly rare opportunity exists to become the custodian of one of Romsey's earliest homes, which has been carefully restored and sympathetically modernised in recent years. A grand home on a generous 1,357 sqm (approx.) that celebrates its Victorian features, including a wide central hallway with archways, elegant 3.5 metre ceilings, polished floorboards, stained-glass windows & doors and original hardware & light fixtures. A classic looped wire fence and gate greet you at the street, the recycled brick path and fragrant roses entice you up to the charming concave verandah with newly laid deck. Inside, the sense of grandeur continues. The three large bedrooms all feature fireplaces with custom built in cupboards at each side. Experience cosy nights by the fire in the living room, or enjoy a luxurious soak in the clawfoot bath and admire the beautiful features surrounding you. The rear of the home is for entertaining, the sunlit dining room offering a wonderful outlook over the garden. At the heart of the kitchen, a magnificent cast iron wood burning stove proudly stands in the hearth, alongside a porcelain apron front sink and a modern 900mm stainless steel cooker. The original 2x2 metre underground cellar is accessible via the roomy pantry and there is plenty of other storage throughout the home. Modern improvements include ducted underfloor heating, reverse cycle split system, solar panels, replacement of weatherboards and insulation, and an exterior repaint 12 months ago. French doors and a hinged barn door connect the kitchen to the North-facing alfresco area and the delightful garden beyond. Meander down the winding pathway beyond the studio and workshop, past glorious purple Irises, Lilacs, Elderflower, English Box hedges and fruit trees. The majestic 100 year old Oak provides a canopy of shade over the lawn in summer, the perfect spot for an event or picnic, overlooking the ducks and chickens scratching around the veggie garden. This home really is the perfect balance of modern country living with a spacious backyard, located a short walk to the town centre and Romsey Ecotherapy Park. A few minute's drive will have you in Lancefield, around 20 minutes to Woodend and Kyneton and just over an hour to Melbourne. Salisbury must be seen to be fully appreciated, inspections via private appointment only.
Location
Address
154 Main Street, Romsey VIC 3434
City
Romsey
Features and Finishes
None
Legal Notice
Our comprehensive database is populated by our meticulous research and analysis of public data. MirrorRealEstate strives for accuracy and we make every effort to verify the information. However, MirrorRealEstate is not liable for the use or misuse of the site's information. The information displayed on MirrorRealEstate.com is for reference only.