154 Vine Cliff Boulevard
Property Details
4
3
Vacant
Description
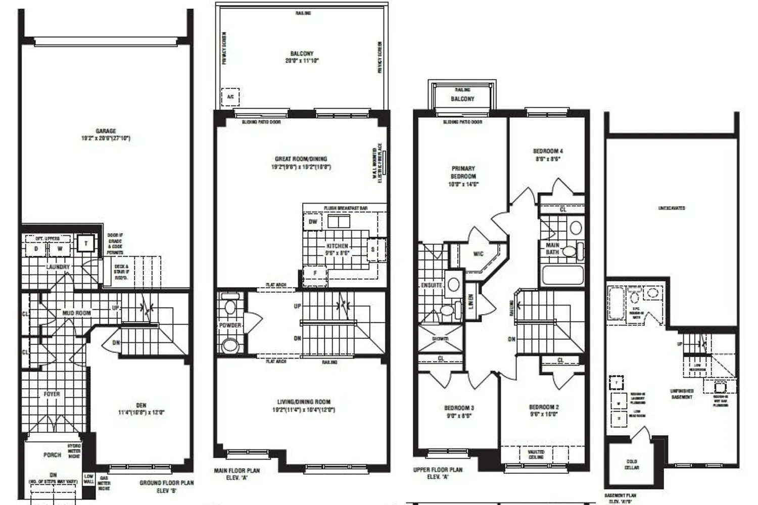
Welcome to this newly constructed freehold townhome located in one of Unionville's most sought-after neighborhoods. Thoughtfully designed for modern living, this exquisite home offers the perfect blend of style, comfort, and functionality-ideal for professionals and families alike. The open-concept main floor boasts soaring ceilings, large windows, and an abundance of natural light, creating a bright and airy atmosphere throughout. Features include a ground-floor den, ground-floor laundry, and a main-floor gourmet kitchen complete with quartz countertops, stainless steel appliances, stylish cabinetry, and a generous peninsula-perfect for cooking, entertaining, and everyday living. Enjoy enhanced curb appeal, a rare two-car garage, and a spacious main-floor balcony (20' x 12') with walkout from the family room, ideal for outdoor relaxation. Conveniently located close to supermarkets, parks, schools, upscale dining, and with quick access to highways. This beautifully crafted residence offers practical luxury in a prime Unionville location-an opportunity not to be missed.
Location
Address
154 Vine Cliff Boulevard
City
Markham
Features and Finishes
None
Legal Notice
Our comprehensive database is populated by our meticulous research and analysis of public data. MirrorRealEstate strives for accuracy and we make every effort to verify the information. However, MirrorRealEstate is not liable for the use or misuse of the site's information. The information displayed on MirrorRealEstate.com is for reference only.