17 Henry Street, Tonsley SA 5042
Property Details
3
3
House
Description
Property Details: • Type: House
• Bedrooms: 3 • Bathrooms: 3
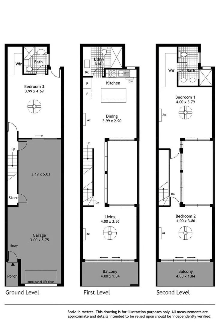
Description: *** How to apply: If you wish to apply for this property, Please apply through *** using the APPLY button Bond - 4 weeks rent equivalent Lease term - 12 months Water charges - Tenant to pay all water usage and water supply charges Nestled in the heart of the vibrant Tonsley precinct, this architecturally designed townhouse offers a perfect blend of modern comfort and low-maintenance living. Spread across three generous levels, this property is ideal for professionals or families seeking space and convenience. Key Features: -Three Spacious Bedrooms: All bedrooms are located on the upper levels, offering privacy and tranquility. -Master Suite (Bedroom 1): A true retreat featuring a private ensuite, a walk-in robe, and a relaxing atmosphere. -Bedroom 2: Generously sized and boasting direct access to a private balcony. -Bedroom 3: Located on the top level, this room offers the luxury of its own ensuite and a balcony, creating a perfect parent or guest retreat. -Modern Bathrooms: The property includes three sleek bathrooms, ensuring convenience for all residents. -Open-Plan Living: The main living and dining area is bathed in natural light and opens onto a large balcony, perfect for entertaining or enjoying your morning coffee. -Kitchen: Centrally located and well-appointed, adjacent to the dining area for seamless indoor-outdoor flow. -Secure Parking: A single garage provides secure off-street parking. Location Highlights: -Situated in a prime location, this home offers unparalleled access to quality education and local amenities. -Close to Clovelly Park Primary School and Hamilton Secondary College. -Easy access to public transport, Flinders University, and the Flinders Medical Centre. -Just minutes from Westfield Marion, local shops, and beautiful parklands.
Location
Address
17 Henry Street, Tonsley SA 5042
City
Tonsley
Features and Finishes
None
Legal Notice
Our comprehensive database is populated by our meticulous research and analysis of public data. MirrorRealEstate strives for accuracy and we make every effort to verify the information. However, MirrorRealEstate is not liable for the use or misuse of the site's information. The information displayed on MirrorRealEstate.com is for reference only.