17 Reservoir Road, Ranelagh TAS 7109
Property Details
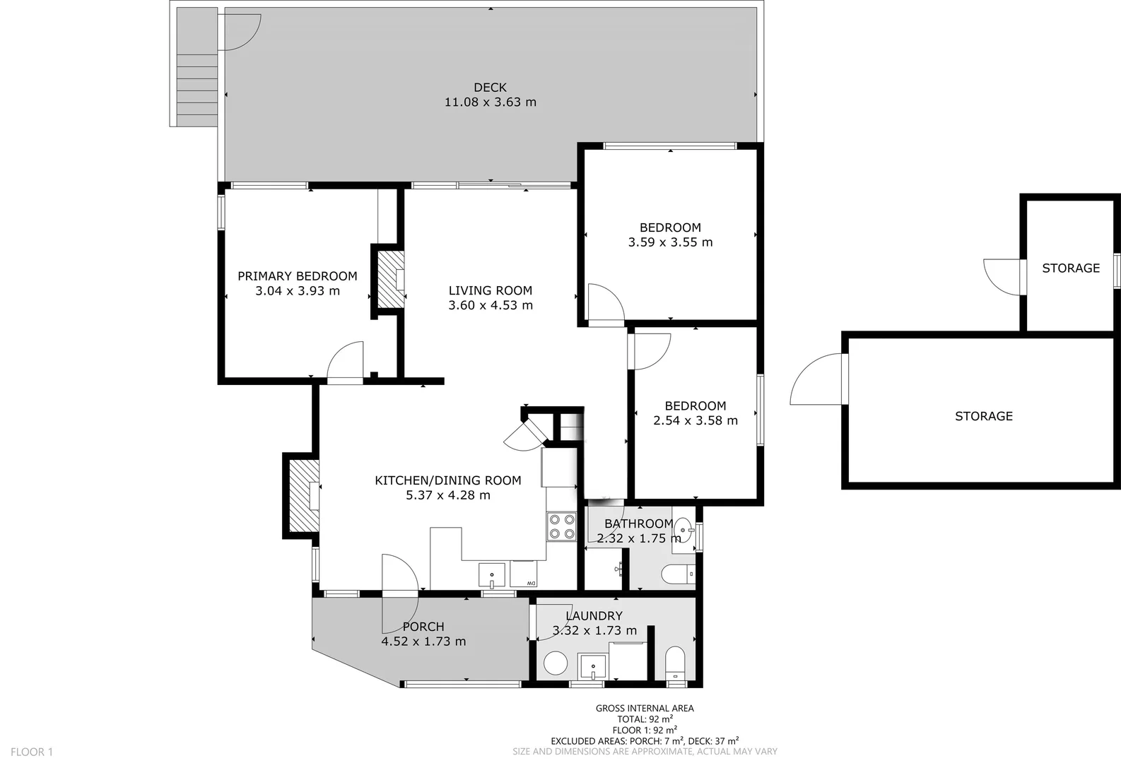
3
1
House
Description
Property Details: • Type: House
• Bedrooms: 3 • Bathrooms: 1
Description: Positioned on just over 2,200 square metres of elevated land, 17 Reservoir Road, Ranelagh presents an exciting opportunity to secure a home packed with potential in a truly picturesque setting. This three-bedroom, one-bathroom residence offers a solid foundation for buyers looking to personalise, renovate, or simply enjoy the space and outlook on offer. With sweeping views across Ranelagh and the surrounding mountain ranges, the property enjoys a peaceful, semi-rural feel while remaining conveniently close to town amenities. The home itself provides a flexible layout ready for creative vision, allowing you to add your own special touch and truly make it your own. A garden shed adds practical storage, while the expansive block offers ample room to enhance the gardens, extend (STCA), or simply enjoy the space and privacy on offer. Perfectly suited to first-home buyers, downsizers, or renovators seeking a project with upside, this property caters to a range of lifestyles and future plans. Ideally located just a two-minute drive to the heart of Ranelagh and approximately six minutes to Huonville, this is a rare chance to secure a high-potential property in a sought-after Huon Valley location. Rates: $1,800 apporx p.a
Location
Address
17 Reservoir Road, Ranelagh TAS 7109
City
Ranelagh
Features and Finishes
None
Legal Notice
Our comprehensive database is populated by our meticulous research and analysis of public data. MirrorRealEstate strives for accuracy and we make every effort to verify the information. However, MirrorRealEstate is not liable for the use or misuse of the site's information. The information displayed on MirrorRealEstate.com is for reference only.