17 Rosemary Court, Encounter Bay SA 5211
Property Details
Vacant Land
Description
Property Details: • Type: Vacant Land
• Bedrooms: 0 • Bathrooms: 0
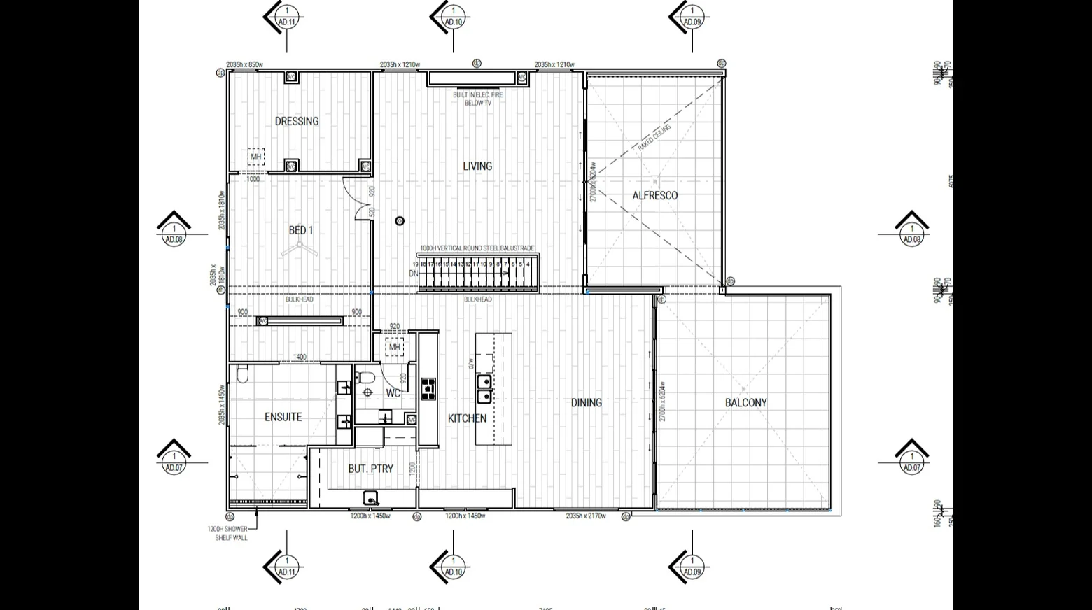
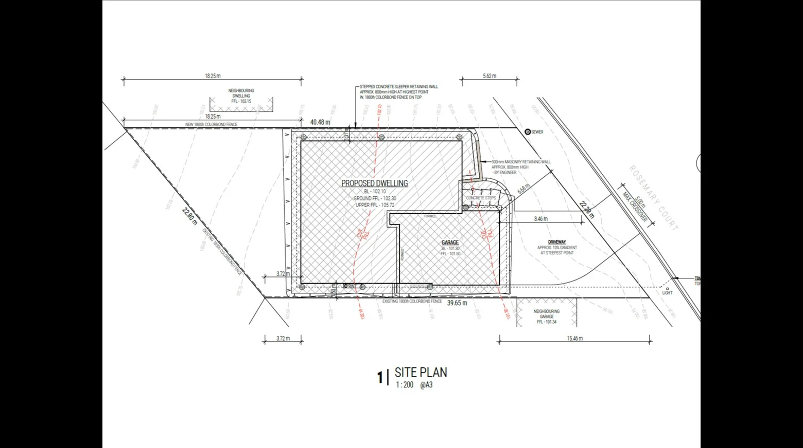
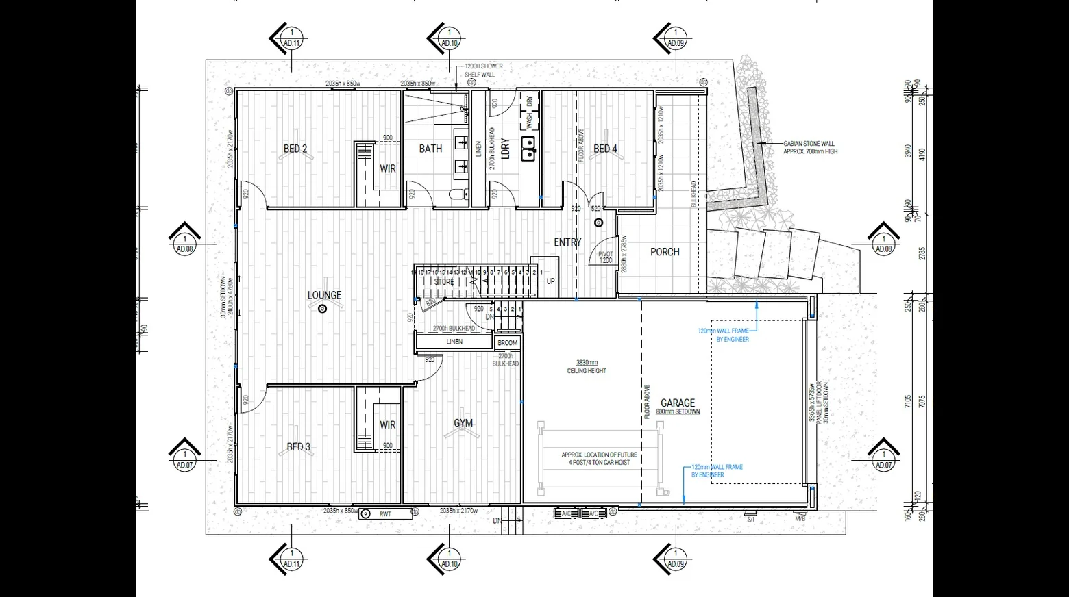
Description: An extraordinary opportunity awaits in the prestigious seaside enclave of Encounter Bay. With full council approval already secured, this premium allotment at 17 Rosemary Court offers the chance to fast-track your dream home in one of the South Coast's most tightly held locations. Perched on the high side of a quiet cul-de-sac and surrounded by quality residences, the block captures sweeping coastal vistas across Granite Island, Victor Harbor, and the stunning Mount Lofty Ranges. From spectacular New Year's Eve fireworks to winter whale migrations, the ever-changing ocean outlook will be your daily backdrop. The approved architectural plans reveal an impressive coastal residence designed to make the most of its elevated position and sweeping views. Featuring soaring 3-metre ceilings and a striking 35-degree double-pitched roofline, the home delivers both architectural impact and a wonderful sense of space. The expansive open-plan upper-level living area is bathed in natural light and perfectly positioned to capture the panoramic outlook. Entertain effortlessly in every season with two substantial balconies - an open terrace ideal for soaking up the winter sunshine, and a covered alfresco space designed for relaxed summer evenings with family and friends. Completing the package is a truly exceptional oversized garage boasting an impressive 3.8-metre ceiling height. Whether you need secure storage for a caravan, large boat, or multiple vehicles, this rare feature offers flexibility seldom found in such a tightly held coastal setting. Positioned just 600 metres from the shoreline, the lifestyle on offer is exceptional. Launch the boat at the nearby Encounter Bay Boat Ramp, dine at the popular Whalers Restaurant, or explore the scenic walking trails along The Bluff and the Heritage Trail. Enjoy quick access to Petrel Cove Beach and Rosetta Head Wharf - all just moments from your future front door. Included in the sale are complete working drawings, CAD files, structural engineering, truss designs and full council approval through City of Victor Harbor. Save 1218 months in planning and approvals and move straight to construction with your preferred builder - or build yourself. Alternatively, if this is not the design for you, you have the option of starting over with your preferred design and builder. You have the freedom to choose. This is more than a block of land. It's a head start on a landmark coastal home in one of South Australia's most admired seaside communities. Secure the view. Secure the lifestyle. Secure your future at Encounter Bay. Specifications: CT / 5375/157 Council / Victor Harbor Zoning / HN Land / 709m2 (approx) Frontage / 22.29m Council Rates / $2369.95pa Emergency Services Levy / $97.30pa SA Water / $176.30pq Estimated rental assessment / Written rental assessment can be provided upon request Nearby Schools /Victor Harbor P.S, Victor Harbor H.S. Disclaimer: All information provided has been obtained from sources we believe to be accurate, however, we cannot guarantee the information is accurate and we accept no liability for any errors or omissions (including but not limited to a property's land size, floor plans and size, building age and condition). Interested parties should make their own enquiries and obtain their own legal and financial advice. Should this property be scheduled for auction, the Vendor's Statement may be inspected at any Harris Real Estate office for 3 consecutive business days immediately preceding the auction and at the auction for 30 minutes before it starts. RLA | 337539
Location
Address
17 Rosemary Court, Encounter Bay SA 5211
City
Encounter Bay
Features and Finishes
None
Legal Notice
Our comprehensive database is populated by our meticulous research and analysis of public data. MirrorRealEstate strives for accuracy and we make every effort to verify the information. However, MirrorRealEstate is not liable for the use or misuse of the site's information. The information displayed on MirrorRealEstate.com is for reference only.