17 The Courtyard, Buntsford Drive, Bromsgrove, Worcestershire, B60

GBP 1225 For Sale

Property Details

Property Type

N/A

Description

Property Details: • Type: N/A • Tenure: N/A • Floor Area: N/A

Key Features: • Open plan accommodation

Location: • Nearest Station: N/A • Distance to Station: N/A

Agent Information: • Address: 7 Roman Way Business Centre, Berry Hill Industrial Estate, Droitwich, WR9 9AJ

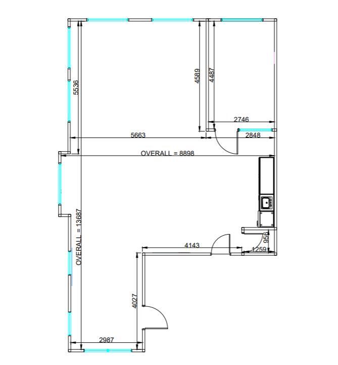
Full Description: 17 The Courtyard is a purpose-built high quality two storey office building. The ground floor has been maintained to a good standard offering open plan office space, a meeting room, an individual office, kitchenette facilities, modern suspended ceilings, gas central heating and Inset LG3 lighting. Communal WC facilities are located in the entrance to the office block. Five onsite allocated parking spaces. LocationThe ground floor offices are situated at The Courtyard with the wider Buntsford Gate development, which provides good quality, out of town office accommodation with easily accessible estate roads and is within close proximity to the Morrisons superstore. The property is situated one mile to the south west of Bromsgrove town centre with Junctions 4 & 5 of the M5 motorway and Junction 1 of the M42 being within three miles of the property. Birmingham city centre is situated 13 miles to the north and Worcester city centre is situated 10 miles to the south.

Location

Address

17 The Courtyard, Buntsford Drive, Bromsgrove, Worcestershire, B60

City

Worcestershire

Features and Finishes

Open plan accommodation

Legal Notice

Our comprehensive database is populated by our meticulous research and analysis of public data. MirrorRealEstate strives for accuracy and we make every effort to verify the information. However, MirrorRealEstate is not liable for the use or misuse of the site's information. The information displayed on MirrorRealEstate.com is for reference only.

Real Estate Broker
GJS Dillon Ltd, Droitwich
Brokerage
GJS Dillon Ltd, Droitwich
Top Tags
Likes

0

Views

47

This website uses cookies to ensure you get the best experience. Learn more