18-22 Dalmar Street, Croydon NSW 2132
Property Details
8
4
Block of Units
Description
Property Details: • Type: Block of Units
• Bedrooms: 8 • Bathrooms: 4
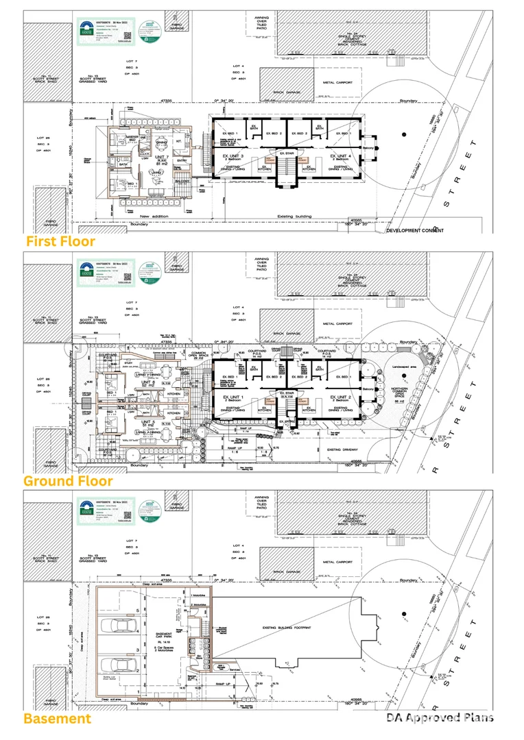
Description: An exceptional opportunity to secure a low-maintenance, character-filled block in one of the Inner-West's most tightly held and desirable pockets. Positioned on an elevated, wide and quiet street, this boutique Art Deco building comprises four well-maintained apartments, blending timeless period charm with modern updates. Each of the four two-bedroom apartments features beautiful original details, updated interiors and sunrooms that enhance space and natural light. The property is ideally located The Bay Run parklands, popular schools and public transport, offering strong lifestyle appeal for tenants. Currently generating $148,980 per annum, the property also presents significant upside with DA approval to further enhance returns. Boutique block of 4 Art Deco apartments 4 x 2-bedroom apartments, each with sunrooms Approximately 1.3km to The Bay Run Easy access to WestConnex M8 & M4 motorways City skyline vista from Unit 3 Current rental return of $148,980 per annum Development Approval for 1 x- 2-bedroom and 2 x- 1-bedroom additional units plus basement parking Forecast to generate an additional $130,000 per annum in rental income following completion. Substantial 663.9sqm (approx.) landholding A rare opportunity combining immediate income, future development potential and blue-chip Inner-West positioning.
Location
Address
18-22 Dalmar Street, Croydon NSW 2132
City
Croydon
Features and Finishes
None
Legal Notice
Our comprehensive database is populated by our meticulous research and analysis of public data. MirrorRealEstate strives for accuracy and we make every effort to verify the information. However, MirrorRealEstate is not liable for the use or misuse of the site's information. The information displayed on MirrorRealEstate.com is for reference only.