18 Williams Road, Laverton VIC 3028
Property Details
3
1
House
Description
Property Details: • Type: House
• Bedrooms: 3 • Bathrooms: 1
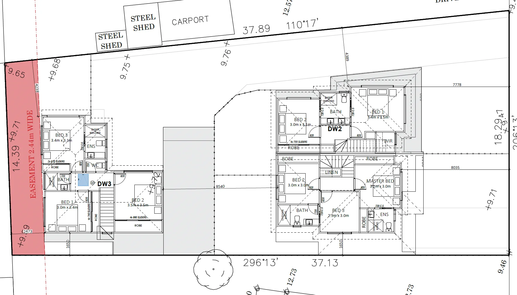
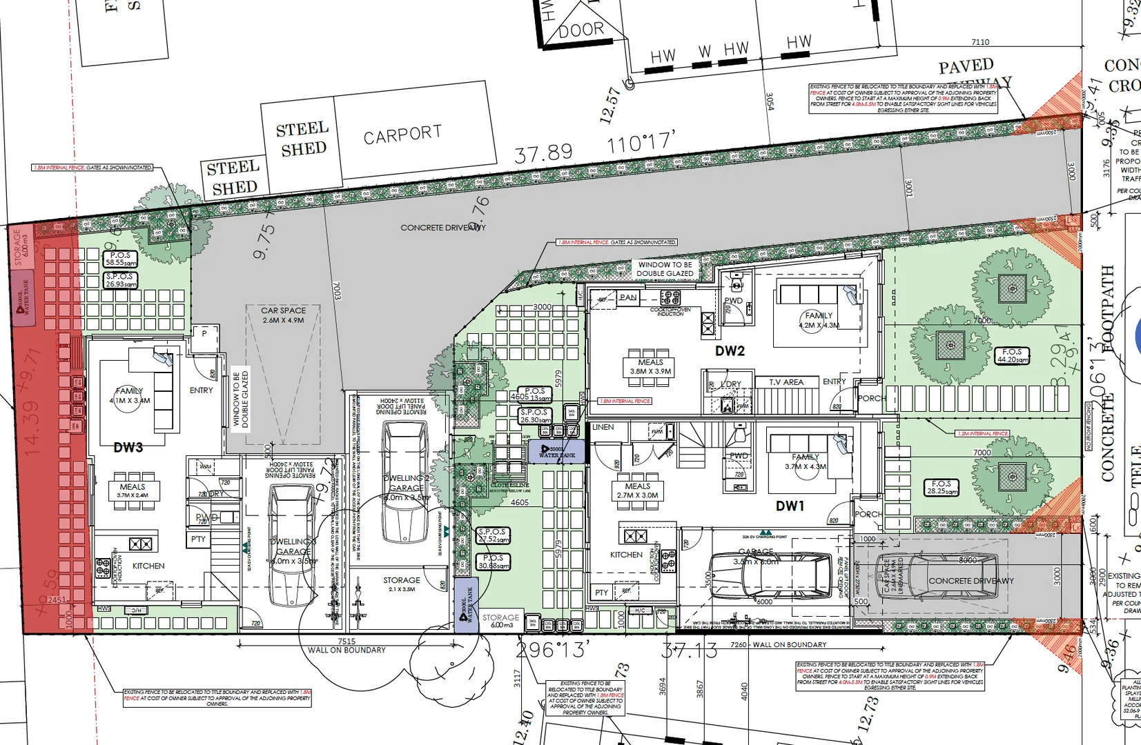
Description: Plans & Permits Approved - 612m² (Approx.) of Prime Potential in Central Laverton Stockdale & Leggo proudly presents a rare and exciting opportunity at 18 Williams Road, Laverton - a property with approved plans and permits for three architecturally designed townhouses, situated on a generous 612m² (approx.) block in one of Melbourne's fastest growing and most connected suburbs. Whether you're a savvy developer ready to start your next project, or an investor looking for a property with immediate rental returns and long-term capital growth, this versatile offering ticks all the boxes. Property is currently rented out for approximately $21,000 annually. Key Highlights: • Plans & Permits Approved for 3 Townhouses - Save time and start building immediately: Townhouse 1 approved for 3 bedrooms, 2 bathrooms upstairs & Family/kitchen/meals/powder room & secured car garage downstairs. Townhouse 2 approved for 2 bedrooms, central bathroom upstairs & Family/kitchen/meals/powder room & secured car garage downstairs. Townhouse 3 approved for 3 bedrooms, 2 bathrooms upstairs & Family/kitchen/meals/powder room & secured car garage downstairs • Substantial Landholding - 612m² (approx.) of flat, rectangular land with wide frontage • Rentable Existing Home - A well-maintained 3-bedroom home offering immediate rental income • Prime Location - Central Laverton address with walking distance to public transport, shops, schools, and freeway access • Ideal Investment or Development Site - Live in, lease out, or redevelop - the choice is yours! Current Dwelling Features: - 3 spacious bedrooms with wardrobes - Central bathroom with separate toilet - Generous formal lounge with window air conditioning - Practical kitchen with ample cupboard space - Separate meals and large secondary living zone - Expansive front and rear yards - Side access and ample off-street parking Location Benefits: • 1-minute drive to Laverton P-12 College - perfect for easy school runs and more family time. • Close to local shops and eateries - enjoy a variety of dining and shopping options just minutes away. • Surrounded by parks and reserves - including Bladin St Reserve, Frank Gibson Reserve, and McCormack Park for family outings and recreation. • Just cross the road for Laverton Station - ideal for commuters with quick access to public transport. • 25-30 minutes to Melbourne CBD - even during peak hours, offering the best of both city and suburban living. • Modern and comfortable lifestyle - a great choice for families or investors looking for location and value. Contact us today for open inspection times or to book a private viewing! This is a rare turnkey development opportunity in a high-growth corridor where demand continues to soar. With all the groundwork done for you, all that's left is to build, invest, or move in and enjoy the future upside. Contact us today to arrange an inspection or request the approved plans and permit package. Disclaimer: Please note that all information in this advertisement is accurate to the best of our knowledge. We recommend interested parties undertake their due diligence, please refer to the following link: http://www.consumer.vic.gov.au/duediligencechecklist. Open for inspection times are subject to change; please check online on the day for the latest information.
Location
Address
18 Williams Road, Laverton VIC 3028
City
Laverton
Features and Finishes
None
Legal Notice
Our comprehensive database is populated by our meticulous research and analysis of public data. MirrorRealEstate strives for accuracy and we make every effort to verify the information. However, MirrorRealEstate is not liable for the use or misuse of the site's information. The information displayed on MirrorRealEstate.com is for reference only.