185 Gentle Annie Road, Apple Tree Creek QLD 4660
Property Details
3
1
House
Description
Property Details: • Type: House
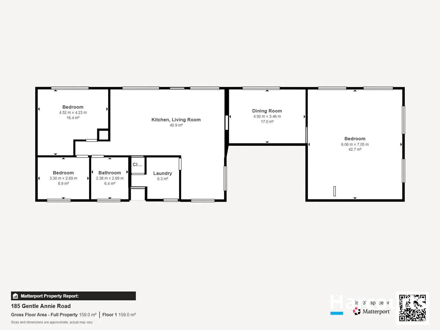
• Bedrooms: 3 • Bathrooms: 1
Description: Fancy the opportunity to live a sustainable lifestyle? 185 Gentle Annie Road in the quiet rural area of Apple Tree Creek, just a short 6 minute drive from the hinterland township of Childers, is now on the market. With heaps of established veggie patches & fruit trees, plenty of water to maintain, a large solar with battery system, its time to enjoy the peace and quiet on offer without the large overheads of having a rural property. The property has been renovated with nothing to have to spend except to unpack and enjoy your new adventure. The Home Features: * 3 Bedroom modern brick home * Massive master - option to split into 2 rooms * Bedrooms 2 & 3 with built-ins * Open plan living & kitchen * Combustion heater in main living area * Separate dining area * Main bathroom with shower, bath & toilet * Internal laundry with plenty of space and extra toilet * Ducted air conditioning throughout * Spacious outdoor undercover deck overlooking the back garden Outside Features: * Large 6m x 18m shed offering excellent storage or vehicle space * Large open air farm shed/ carport * Woodfire pizza oven & rustic style outdoor storage * Loads of established fruit trees - no need to be waiting for fruit * Raised gardens & veggie patches * Water point taps through the property serviced from the pump on the dam * Fully fenced 4.94 acres with plenty of space to keep you occupied Property Services: * Full Solar to the grid system - complete with battery backup system * Solar hot water system * Standard septic system * Plenty of rainwater storage with Approx. 85,000lt of storage * Wireless NBN in the area * Australia post delivery * Council bin service Don't miss your opportunity to inspect & secure this wonderful home. With nothing to do, but unpack your bags and soak up the beauty and peaceful life the Childers region has to offer! Contact Your Expert Local Harcourts Ignite Exclusive Agents Krysten Madden on 0429 271 292 or Daniel Randall on 0427 728 734 to inspect today. All information contained herein is gathered from sources we believe to be reliable. However, we can not guarantee its accuracy and interested persons should rely on their own enquiries.
Location
Address
185 Gentle Annie Road, Apple Tree Creek QLD 4660
City
Apple Tree Creek
Features and Finishes
None
Legal Notice
Our comprehensive database is populated by our meticulous research and analysis of public data. MirrorRealEstate strives for accuracy and we make every effort to verify the information. However, MirrorRealEstate is not liable for the use or misuse of the site's information. The information displayed on MirrorRealEstate.com is for reference only.