186-187 Lewes Road, Brighton, BN2 3LD

GBP 500000 For Sale

Property Details

Property Type

Land

Description

Property Details: • Type: Land • Tenure: N/A • Floor Area: N/A

Key Features:

Location: • Nearest Station: N/A • Distance to Station: N/A

Agent Information: • Address: Austin Gray LLP, 37 Vernon Terrace, Brighton, BN1 3JH

Full Description: **For Sale By Auction on Thursday 11 September 2025**

*Guide Price £500,000

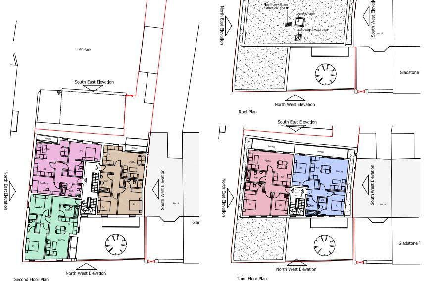
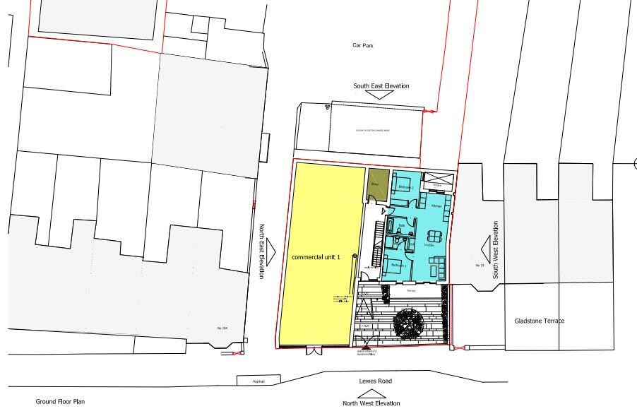
Freehold Development Site (With lapsed Planning Consent, for 9 x 2 Bedroom Flats And A 158 sqm Commercial Unit)

Description 186-187 Lewes Road is a vacant site comprising, a former car sales showroom with two retail units & flats above. Planning consent was granted on the 29th September 2020 for the demolition of the existing building and the construction of 9 x 2 bedroom flats, with a 158 sqm retail unit on the ground floor (Planning permission expired on the 28th September 2023. Planning no BH2020/00239).

Situation The site is situated at the southern end of Lewes Road, within close proximity of a variety of local amenities, cafes and shops. The North Laines and Brighton Mainline Railway Station are less than a mile from the property, (London Victoria 62 minutes).

The area has seen significant investment and regeneration in recent years with many new, local independent retailers and cafes opening on Lewes Road.

Location Pin (What3Words): rises.rested.hoot NB WE DRAW YOUR ATTENTION TO THE SPECIAL CONDITIONS IN THE LEGAL PACK, REFERRING TO OTHER CHARGES IN ADDITION TO THE PURCHASE PRICE. PLEASE ENSURE YOU READ THE SPECIAL CONDITIONS THOROUGHLY

Tenure FreeholdBrochuresLegal Documents

Location

Address

186-187 Lewes Road, Brighton, BN2 3LD

City

Brighton

Legal Notice

Our comprehensive database is populated by our meticulous research and analysis of public data. MirrorRealEstate strives for accuracy and we make every effort to verify the information. However, MirrorRealEstate is not liable for the use or misuse of the site's information. The information displayed on MirrorRealEstate.com is for reference only.

Real Estate Broker
Austin Gray, Auction House Sussex
Brokerage
Austin Gray, Auction House Sussex
Top Tags
9 x 2 Bedroom Flats
Likes

0

Views

74

This website uses cookies to ensure you get the best experience. Learn more