19 Abercrombie Court, Prospect Road, Arnhall Business Park, Westhill, AB32 6FE
Property Details
Office
Description
Property Details: • Type: Office • Tenure: N/A • Floor Area: 3000-7995 sqft
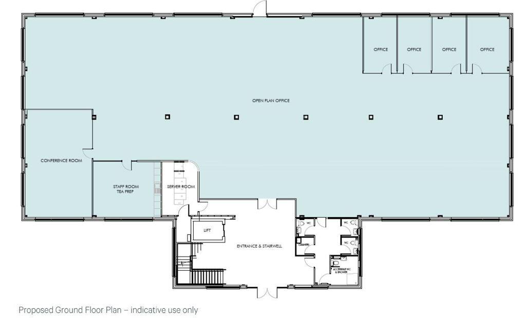
Key Features: • Open plan office accommodation • 29 car parking spaces • Net Internal Area: 842.73 sq. m (7,995 sq. ft)
Location: • Nearest Station: Dyce Station • Distance to Station: 5.269763589142253 miles
Agent Information: • Address: 21 Carden Place, Aberdeen, AB10 1UQ
Full Description: The subjects comprise the ground floor of a modern three storey, detached office building of steel frame construction which is externally clad in brickwork and metal cladding. Internally, the office accommodation presents well and is currently a mix of open plan accommodation with a large boardroom and several other meeting rooms. The suite also benefits from a tea prep area and communal male, female and accessible WC and shower. The ground floor suite is available as a whole or there is potential to sub-divide the suite further to accommodate smaller requirements. Further information is available on request.
Location
Address
19 Abercrombie Court, Prospect Road, Arnhall Business Park, Westhill, AB32 6FE
City
Westhill
Features and Finishes
Open plan office accommodation, 29 car parking spaces, Net Internal Area: 842.73 sq. m (7,995 sq. ft)
Legal Notice
Our comprehensive database is populated by our meticulous research and analysis of public data. MirrorRealEstate strives for accuracy and we make every effort to verify the information. However, MirrorRealEstate is not liable for the use or misuse of the site's information. The information displayed on MirrorRealEstate.com is for reference only.