19 Alvin Ave
CAD 4,488,800
For Sale
MLS: C12422199
Property Details
Bedrooms
3
Bathrooms
3
Property Type
Detached
Description
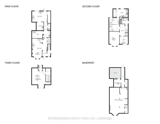
MLS#: C12422199 Type: Detached Living Space: 2000-2500 sqft Year Built: 100+ Parking Spaces: 4 Garage Spaces: 4 Basement: Sep Entrance, Development Potential Swimming Pool: Yes Lot Size: 25 x 116 Annual Taxes: $12554.63
Location
Address
19 Alvin Ave
City
Toronto
Legal Notice
Our comprehensive database is populated by our meticulous research and analysis of public data. MirrorRealEstate strives for accuracy and we make every effort to verify the information. However, MirrorRealEstate is not liable for the use or misuse of the site's information. The information displayed on MirrorRealEstate.com is for reference only.