19 Port View Drive, Port Huon TAS 7116
Property Details
Vacant Land
Description
Property Details: • Type: Vacant Land
• Bedrooms: 0 • Bathrooms: 0
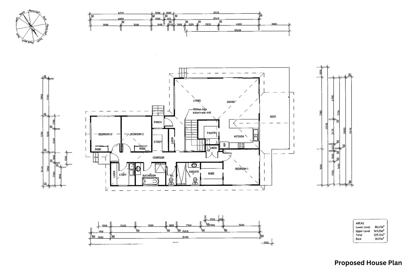
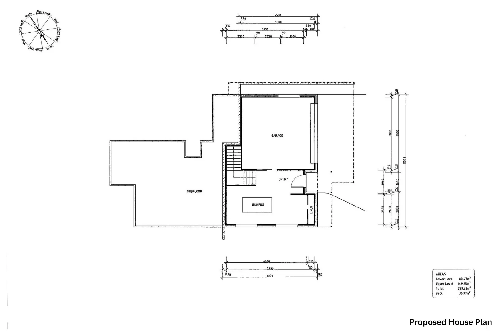
Description: Welcome to 19 Port View Drive, Port Huon, an exciting opportunity to secure a fully prepared parcel of land with everything ready for you to start building your dream home. This generous 736 m² block comes complete with approved house plans, full council approval, and all supporting reports, saving you time and effort. The proposed home design takes full advantage of the elevated position, offering beautiful views across Port Huon and the shimmering Huon River. The plans showcase a modern split-level home with an open-plan living area, spacious bedrooms, and an expansive deck to capture the ever-changing river scenery. Port Huon is one of the Huon Valley's most picturesque waterside communities, offering a relaxed lifestyle with a local marina, boat ramp, sports centre, and walking tracks along the foreshore. It's just a few minutes to the vibrant township of Huonville and approximately 50 minutes to Hobart, making it the perfect blend of coastal serenity and modern convenience. All the hard work has been done for you, so grab a builder and bring your new home to life in this sought after part of the Huon Valley. Disclaimer: We have obtained all information in this document from sources we believe to be reliable however we cannot guarantee its accuracy. Prospective purchasers are advised to carry out their own investigations.
Location
Address
19 Port View Drive, Port Huon TAS 7116
City
Port Huon
Features and Finishes
None
Legal Notice
Our comprehensive database is populated by our meticulous research and analysis of public data. MirrorRealEstate strives for accuracy and we make every effort to verify the information. However, MirrorRealEstate is not liable for the use or misuse of the site's information. The information displayed on MirrorRealEstate.com is for reference only.