19 Wilton Grove, Woongarrah NSW 2259
Property Details
4
2
House
Description
Property Details: • Type: House
• Bedrooms: 4 • Bathrooms: 2
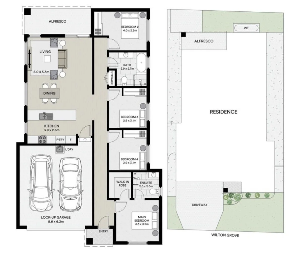
Description: Welcome to 19 Wilton Grove, Woongarrah - a stunning family home designed for modern living. This beautifully appointed house features 4 spacious bedrooms and 2 well-designed bathrooms, making it perfect for families or professionals seeking comfort and style. Inside, you'll find an inviting living room that flows seamlessly into a contemporary kitchen, equipped with modern appliances and ample storage. The interior design is thoughtfully curated, ensuring a warm and welcoming atmosphere throughout the home. Enjoy the fresh air from your private balcony, ideal for morning coffee or evening gatherings. Other Property Features: • Four generous bedrooms with walk in robe to main and built in robes to the other three bedrooms • Open-plan living and dining area • Modern kitchen with gas appliances and a dishwasher • Ducted air conditioning & ceiling fans to bedrooms • Family bathroom plus ensuite • Secure backyard • Double garage with remote control to garage door
Location
Address
19 Wilton Grove, Woongarrah NSW 2259
City
Woongarrah
Features and Finishes
None
Legal Notice
Our comprehensive database is populated by our meticulous research and analysis of public data. MirrorRealEstate strives for accuracy and we make every effort to verify the information. However, MirrorRealEstate is not liable for the use or misuse of the site's information. The information displayed on MirrorRealEstate.com is for reference only.