19509 Bass Highway, Detention TAS 7321
Property Details
26
13
Block of Units
Description
Property Details: • Type: Block of Units
• Bedrooms: 26 • Bathrooms: 13
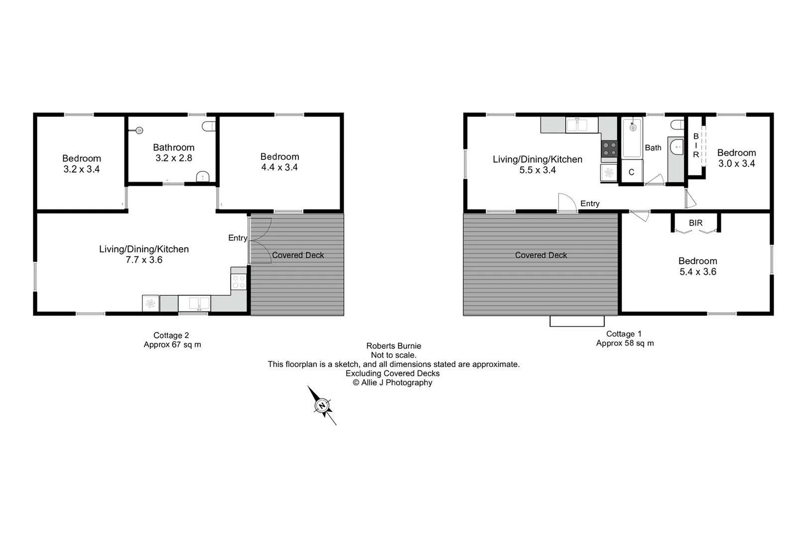
Description: Positioned prominently along the Bass Highway in Detention, this substantial 26-bedroom, 12-bathroom property presents a rare opportunity for large-scale accommodation, staff housing, community use or a specialised facility (STCA). Designed for functionality and capacity, the residence offers extensive sleeping quarters complemented by multiple well-appointed bathrooms, ensuring comfort and convenience for high-occupancy living. A spacious commercial-style kitchen caters effortlessly to large groups, flowing through to an expansive common room ideal for dining, meetings, recreation or collaborative use. Practicality continues with a dedicated laundry facility, generous storage options, and a fully equipped gym/workshop space, providing flexibility for training, hobbies or operational needs. The impressive large industrial size workshop with three phase power adds even further versatility, complete with additional accommodation within the workshop itself perfect for on-site managers, staff or extended use requirements. Set on a sizeable parcel with excellent highway exposure and accessibility, the property offers ease of transport and logistical convenience while remaining within reach of key regional centres. With scale, adaptability and significant infrastructure already in place, this is a unique and substantial holding ready for its next chapter. Detention is a peaceful coastal locality on Tasmania's North-West Coast, known for its relaxed lifestyle and scenic natural surroundings. Positioned along the Bass Highway, it offers convenient access to nearby townships while maintaining a quiet, community-focused atmosphere. Residents enjoy proximity to beautiful beaches, fishing spots and coastal walking tracks, making it ideal for those seeking space, tranquillity and easy regional connectivity. Disclaimer: All information provided in this property listing by Roberts Burnie is intended as a general guide only. While we strive to ensure the accuracy and reliability of the details presented, we cannot guarantee their completeness or correctness. Prospective purchasers are advised to conduct their own independent inquiries and seek professional advice to verify the information contained herein. We disclaim all liability for any errors, omissions, or misstatements, and shall not be held responsible for any loss or damage resulting from reliance on this information. Prices and property availability are subject to change without notice.
Location
Address
19509 Bass Highway, Detention TAS 7321
City
Detention
Features and Finishes
None
Legal Notice
Our comprehensive database is populated by our meticulous research and analysis of public data. MirrorRealEstate strives for accuracy and we make every effort to verify the information. However, MirrorRealEstate is not liable for the use or misuse of the site's information. The information displayed on MirrorRealEstate.com is for reference only.