1968 Main St Unit 707
CAD 319,000
For Sale
MLS: X12370197
Property Details
Bedrooms
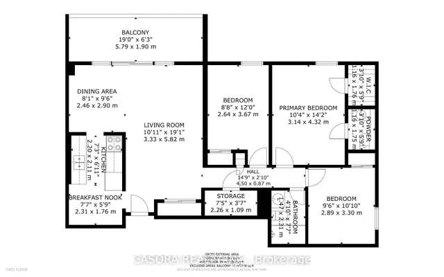
3
Bathrooms
2
Property Type
Comm Element Condo
Description
MLS#: X12370197 Type: Comm Element Condo Living Space: 1000-1199 sqft Year Built: 51-99 Parking Spaces: 1 Garage Spaces: 1 Basement: None Swimming Pool: No Annual Taxes: $2889.47 Maintenance Fees: $929.27
Location
Address
1968 Main St Unit 707
City
Hamilton
Legal Notice
Our comprehensive database is populated by our meticulous research and analysis of public data. MirrorRealEstate strives for accuracy and we make every effort to verify the information. However, MirrorRealEstate is not liable for the use or misuse of the site's information. The information displayed on MirrorRealEstate.com is for reference only.