19A Hermoine Terrace, Epping VIC 3076
Property Details
2
1
House
Description
Property Details: • Type: House
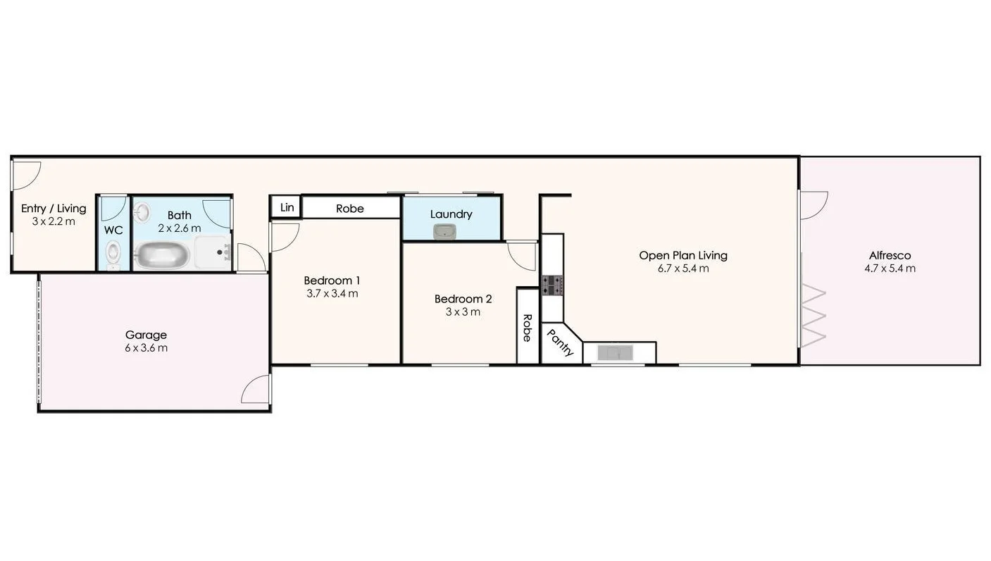
• Bedrooms: 2 • Bathrooms: 1
Description: Immaculately presented and modern, this stylish single-level home delivers easy, low-maintenance living. Filled with natural light, it features two generous bedrooms, a central bathroom, separate powder room, and a versatile study or retreat. The open-plan kitchen, living, and dining area flows seamlessly to a north-facing private yard with covered decking, perfect for entertaining. Complete with quality finishes, heating and cooling, and a remote garage with internal access. Conveniently located close to parklands, schools, shops, and transport, with easy access to Epping amenities and major freeways. For further information or to apply for this property please contact Aryanaz Moradi today on (03) 9401 2322, or by email [email protected]
Location
Address
19A Hermoine Terrace, Epping VIC 3076
City
Epping
Legal Notice
Our comprehensive database is populated by our meticulous research and analysis of public data. MirrorRealEstate strives for accuracy and we make every effort to verify the information. However, MirrorRealEstate is not liable for the use or misuse of the site's information. The information displayed on MirrorRealEstate.com is for reference only.