2/33-37 Gray Street, Kogarah NSW 2217
Property Details
2
2
Apartment / Unit / Flat
Description
Property Details: • Type: Apartment / Unit / Flat
• Bedrooms: 2 • Bathrooms: 2
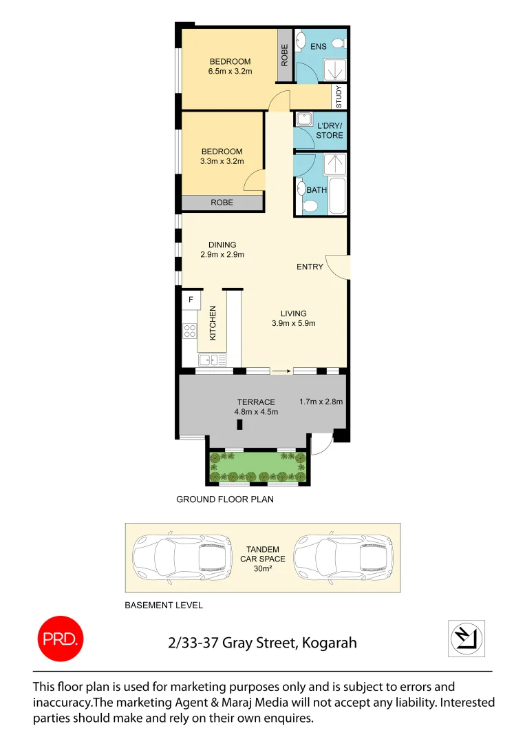
Description: Perfectly positioned in the heart of Kogarah and directly across the road from St George Hospital, this double brick ground floor villa style apartment offers an exceptional lifestyle of convenience, comfort, and modern living. This is a rare opportunity to secure a well-appointed apartment in one of the area's most sought-after locations. Designed for effortless indoor-outdoor living, upon entering you are welcomed into a generous open plan living and dining area, complete with split system air-conditioning and seamless access to a large private courtyard, ideal for entertaining guests or enjoying a peaceful outdoor retreat. The renovated kitchen is both stylish and functional, featuring sleek stone benchtops, ample cupboard space, a gas cooktop, oven, dishwasher, and a breakfast bar / preparation benchtop perfect for casual dining. Both bedrooms are well-sized and boast ample storage with built-in wardrobes, the main bedroom, complete with its own ensuite and a dedicated study nook. The main bathroom features a shower, bathtub, toilet, and a brand-new vanity, while the internal laundry with sink and dryer adds everyday convenience. With Kogarah Town Centre offering shops, cafes & public transport approximately 700 meters away. St George Hospital and medical facilities are all within walking distance, this property delivers an unbeatable combination of lifestyle and location right in the centre of Kogarah. Key Features: . 144m2 villa style double brick apartment • Two bedrooms with built-in wardrobes and new floorboards • Two modern bathrooms including ensuite • Open-plan living and dining with air-conditioning • Renovated kitchen with gas cooking and dishwasher • Large private courtyard ideal for entertaining • Internal laundry with sink and dryer • Two Secure car spaces
Location
Address
2/33-37 Gray Street, Kogarah NSW 2217
City
Kogarah
Features and Finishes
None
Legal Notice
Our comprehensive database is populated by our meticulous research and analysis of public data. MirrorRealEstate strives for accuracy and we make every effort to verify the information. However, MirrorRealEstate is not liable for the use or misuse of the site's information. The information displayed on MirrorRealEstate.com is for reference only.