2-4, Edward Street, Westbury, Wiltshire BA13 3DR

GBP 200000 For Sale

Property Details

Property Type

Residential Development

Description

Property Details: • Type: Residential Development • Tenure: N/A • Floor Area: N/A

Key Features: • Current EPC Rating: C75 • For Sale by National Timed Auction, bidding opens 13/01/25 at 13:00pm and closes 24 hours later • Commercial Development Opportunity • Planning Permission Approved Under Ref: PL/2023/07748 • Legal Pack Available To Download Free Of Charge Via Our Website • Bidder Registration Available Via Our Website • See Additional Fees Note

Location: • Nearest Station: Westbury Station • Distance to Station: 0.8 miles

Agent Information: • Address: Suite 204B, Second Floor, Studio 5-11, Millbay Road, Plymouth, Devon, PL1 3LF

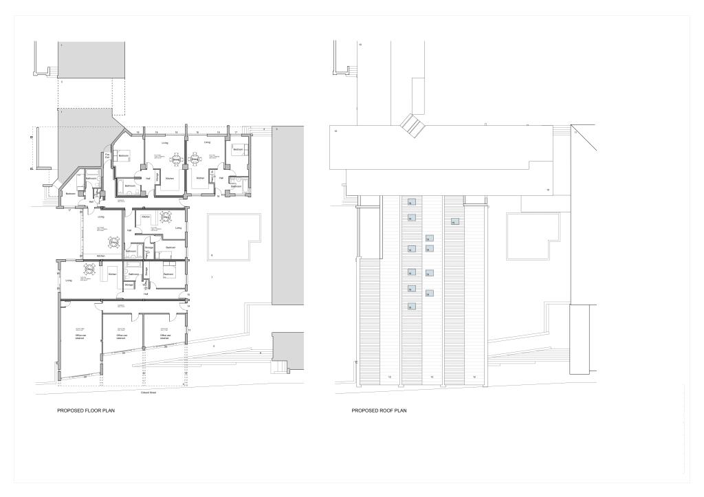
Full Description: **Guide Price £200,000 - £250,000 (+ fees). For Sale by National Timed Auction, bidding opens 13/01/25 at 13:00pm and closes 24 hours later. Freehold development opportunity, Currently a vacant commercial building with Planning Permission granted for conversion into five 1 bed apartments and 3 commercial units (Wiltshire Council Planning Ref: PL/2023/07748). Full legal pack available to download via our website.Development OpportunityOffering to auction, this commercial development opportunity. Currently a vacant commercial building, measuring over 4,000 square feet, and parking. There has been a planning application submitted and approved for conversion into five, one bedroom apartments and three commercial units. Details can be found on the Wiltshire Council website under the Planning Reference PL/2023/07748.

Westbury is a small market town and is situated at the western edge of Wiltshire, beside the chalk down lands that form Salisbury Plain. A short walk away, Westbury station is the key to the South West with a regular direct service to London Paddington, taking just over an hour, as well as linking to Bath, Bristol and down to Penzance. PLANNING DETAILS The Planning Permission granted is for the conversion of the building into five, one bedroom apartments and three commercial units. The planning details can be found on the Wiltshire Council website under the Planning Reference PL/2023/07748. There is scope for various options including a full conversion to residential, subject to the necessary consents.AUCTIONEERS NOTE ( CHANGES TO PLANNING) Please note that the current seller is exploring the option to change the planning to convert into 7 flats instead of the current approved planning of 5 flats and 3 commercial units.VIEWINGS Regular block viewing sessions will be provided in the lead up to the auction. Please telephone Auction House South West on to request a viewing.FULL DETAILS Photographs, Dimensions, Floor Plans and Area Measurements (when available) are included within our full details online on our website. All published information is to aid identification of the property and is not necessarily to scale.NOTICE TO BIDDER Please be aware that if your Bid is successful on Auction day the exchange of contracts will happen immediately after the Auction.Tenure: LeaseholdLease Details: 125 Years (99 years unexpired)EPC Rating: C75Administration Fee: £1200 inc VAT payable on exchange of contracts.Disbursements: Please see the legal pack for any disbursements listed that may become payable by the purchaser on completion.

Location

Address

2-4, Edward Street, Westbury, Wiltshire BA13 3DR

City

Wiltshire

Features and Finishes

Current EPC Rating: C75, For Sale by National Timed Auction, bidding opens 13/01/25 at 13:00pm and closes 24 hours later, Commercial Development Opportunity, Planning Permission Approved Under Ref: PL/2023/07748, Legal Pack Available To Download Free Of Charge Via Our Website, Bidder Registration Available Via Our Website, See Additional Fees Note

Legal Notice

Our comprehensive database is populated by our meticulous research and analysis of public data. MirrorRealEstate strives for accuracy and we make every effort to verify the information. However, MirrorRealEstate is not liable for the use or misuse of the site's information. The information displayed on MirrorRealEstate.com is for reference only.

Real Estate Broker
Auction House, South West
Brokerage
Auction House, South West
Top Tags
Westbury Station 0.8 miles away Westbury Wiltshire BA13 3DR
Likes

0

Views

55

This website uses cookies to ensure you get the best experience. Learn more