2-5 & 8-11/183 - 185 Wonga Road, Warranwood VIC 3134
Property Details
3
2
Townhouse
Description
Property Details: • Type: Townhouse
• Bedrooms: 3 • Bathrooms: 2
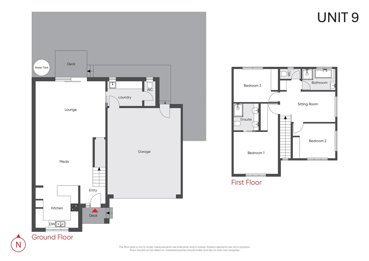
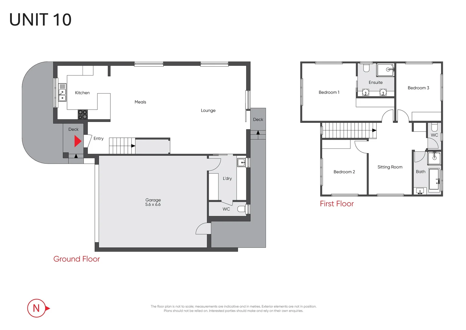
Description: Discover a premium lifestyle in these brand new double story homes, perfectly positioned just moments from Quambee Reserve, local athletic fields and sporting clubs. Families will appreciate the convenience of nearby schools including Warranwood Primary School, Yarra Valley Grammar and Good Shepherd Lutheran Primary School all within easy reach. Thoughtfully designed for modern living, each home showcases a spacious, light filled open-plan kitchen, living and dining area on the ground floor, creating a seamless flow that's ideal for entertaining or relaxing with family, there is a mix of master bedrooms located upstairs and downstairs as well as some homes featuring a north facing backyard. Contemporary style meets everyday comfort with premium finishes throughout, including elegant stone bench tops, stainless steel appliances, fully tiled bathrooms, gas ducted heating, engineered oak flooring and quality carpets, all complemented by soft neutral tones that enhance the sense of space. Large windows invite an abundance of natural light, ensuring every room feels warm and welcoming. Each home offers a variety of well-considered layouts, with all featuring three generous bedrooms, two bathrooms plus a downstairs powder room, open-plan living, built-in-robes, an upstairs sitting area and a double garage with internal access. UNIT 2, 3, 4, 5, 8, 10 & 11: $950,000 UNIT 9: SOLD
Location
Address
2-5 & 8-11/183 - 185 Wonga Road, Warranwood VIC 3134
City
Warranwood
Features and Finishes
None
Legal Notice
Our comprehensive database is populated by our meticulous research and analysis of public data. MirrorRealEstate strives for accuracy and we make every effort to verify the information. However, MirrorRealEstate is not liable for the use or misuse of the site's information. The information displayed on MirrorRealEstate.com is for reference only.