2/83 Mathoura Road, Toorak VIC 3142
Property Details
1
1
Apartment / Unit / Flat
Description
Property Details: • Type: Apartment / Unit / Flat
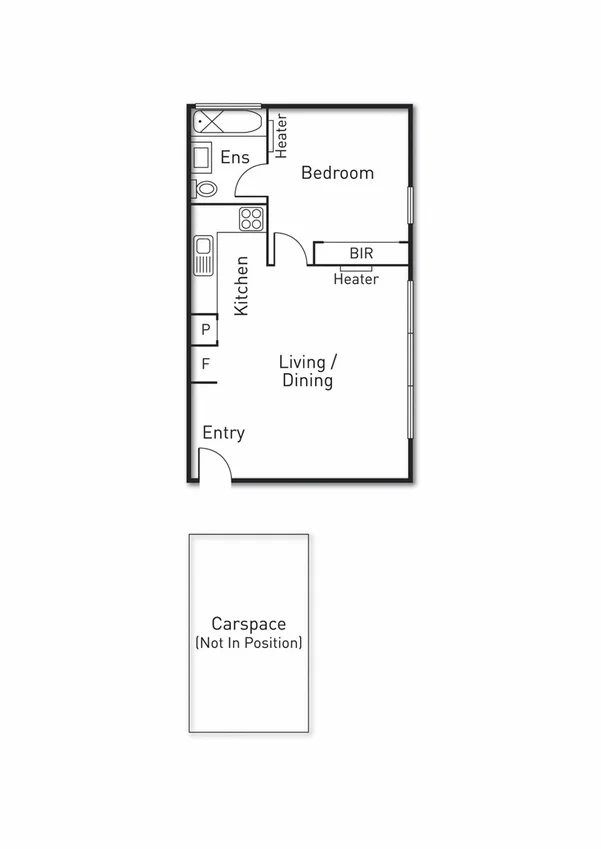
• Bedrooms: 1 • Bathrooms: 1
Description: **TO BOOK A TIME TO INSPECT, SIMPLY CLICK ON BOOK AN INSPECTION TIME OR EMAIL AGENT TO BE NOTIFIED OF INSPECTION TIMES. BY REGISTERING, YOU WILL BE INSTANTLY INFORMED OF ANY UPDATES, CHANGES OR CANCELLATIONS FOR YOUR APPOINTMENT. IF YOU DO NOT REGISTER FOR AN INSPECTION, ACCESS MAY NOT BE PROVIDED** Perfectly positioned and well- presented, this generous one bedroom apartment is ideally located only moments away from the fashionable shopping, cafes and restaurants that both Toorak and Hawksburn Villages have to offer. - Secure entrance - Generous main bedroom with built-in robes - Sun-filled living/dining combined with private leafy outlook, with wall heater - Modern kitchen - Sparkling bathroom - Communal laundry - Secure off street parking Offers easy access to shopping, cafes and transport to the CBD with trams at the end of the street and a train station around the corner.
Location
Address
2/83 Mathoura Road, Toorak VIC 3142
City
Toorak
Legal Notice
Our comprehensive database is populated by our meticulous research and analysis of public data. MirrorRealEstate strives for accuracy and we make every effort to verify the information. However, MirrorRealEstate is not liable for the use or misuse of the site's information. The information displayed on MirrorRealEstate.com is for reference only.