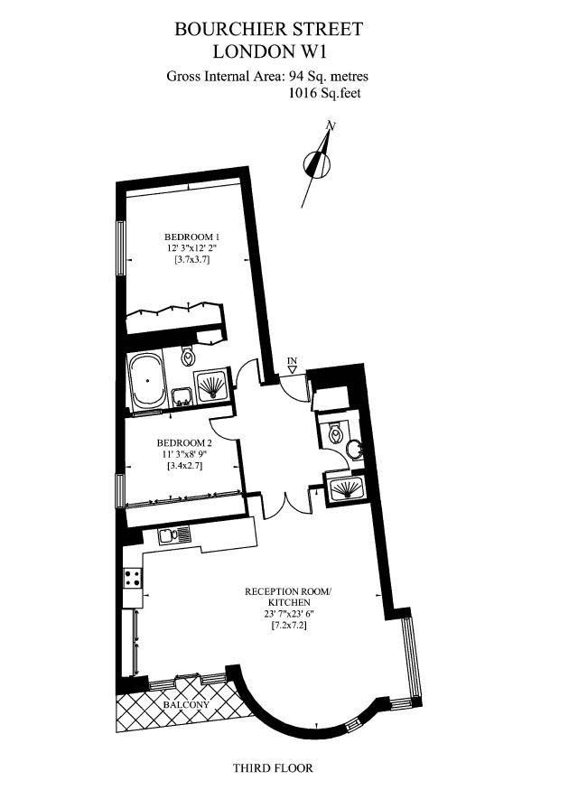
2 Bed Flat, Bourchier Street, W1D
Property Details
2
2
Flat
Description
OpenRent Rental Listing
Property Details: Type: Flat Bedrooms: 2 Bathrooms: 2 Rent: 4550 GBP per month
Listed By: OpenRent Landlord
Description: Available immediately. This beautiful, modern apartment truly is a rare find. Situated on the forth floor, this two bed apartment has a light and airy loft-like feel. The property boasts two excellent sized bedrooms, main bathroom and WC, balcony, large open plan lounge with kitchen area and secure allocated parking. The apartment is situated in a gated development with elevator based in the heart of the West End. Excellent transport links, shops, bars and restaurants all on your doorstep. Early viewing highly recommended.Please note this property is not available for subletting/holiday let purposes.
Read more
Location
Address
2 Bed Flat, Bourchier Street, W1D
City
Cambridge
Features and Finishes
None
Legal Notice
Our comprehensive database is populated by our meticulous research and analysis of public data. MirrorRealEstate strives for accuracy and we make every effort to verify the information. However, MirrorRealEstate is not liable for the use or misuse of the site's information. The information displayed on MirrorRealEstate.com is for reference only.