2 Bed Flat, Centenary Plaza, B1, N1 7GU
Property Details
2
2
Flat
Description
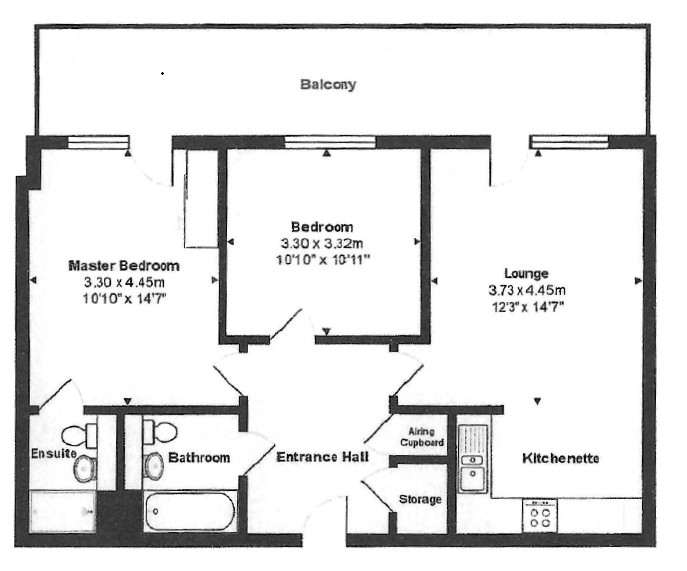
2 Bedroom, 2 Bathroom Apartment – 5th Floor, Centenary Plaza, B1 Private Balcony • Secure Parking • Residents Gym • 24/7 Concierge A modern and spacious 2 bedroom, 2 bathroom apartment on the 5th floor of the highly sought‑after Centenary Plaza development. Perfectly located in Birmingham city centre, just moments from New Street Station, The Mailbox and the Bullring. Ideal for professionals or sharers looking for premium living in a prime location. Key Features Furnished to a high standard 5th floor position offering privacy and tranquillityLarge master bedroom with en-suite bathroomSecond bedroom with space for home officeModern bathroom with bath and shower Full length balcony with city views, accessible from master bedroom and living room Open‑plan living and dining area with brand new electric heaters Integrated kitchen with modern appliances including dishwasher Secure allocated parking space conveniently positioned on ground floor of car park Access to exclusive residents’ gym Secure fob entry and on‑site management team 24‑hour concierge service Lift access to all floors Access to internal courtyard/garden area Location New Street Station – approx. 5 mins walk Mailbox – approx. 2 mins walk Bullring – approx. 10 mins walk Easy access to Colmore Row, Brindleyplace & canal network
--- Property Details --- Type: Flat Bedrooms: 2 Bathrooms: 2 Rent: £1,350 per month Deposit: £1,557.69 Furnished: Furnished Available From: 28 March, 2026 Minimum Tenancy: 12 Months Bills Included: Broadband View Offers Postcode: N1 7GU Listed By: OpenRent Landlord
Location
Address
2 Bed Flat, Centenary Plaza, B1, N1 7GU
City
N1 7GU
Features and Finishes
Furnished, Available: 28 March, 2026, Min tenancy: 12 Months, Bills: Broadband View Offers
Legal Notice
Our comprehensive database is populated by our meticulous research and analysis of public data. MirrorRealEstate strives for accuracy and we make every effort to verify the information. However, MirrorRealEstate is not liable for the use or misuse of the site's information. The information displayed on MirrorRealEstate.com is for reference only.