2 Bed Flat, Ebury Bridge Road, SW1W, N1 7GU
Property Details
2
2
Flat
Description
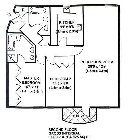
A spacious two-bedroom apartment located within a contemporary residential development just a short distance from Sloane Square and Victoria Station.The apartment offers high-quality finishes throughout, including wooden flooring and a modern kitchen fitted with granite surfaces and integrated appliances. There are two generously sized double bedrooms, both benefiting from built-in storage, alongside two stylish marble bathrooms.The open-plan living and dining space provides direct access to a private balcony, creating a bright and comfortable area for relaxing or entertaining. The property also includes a designated parking space.Set within the sought-after Chelsea Gate Apartments development, residents benefit from a 24-hour concierge service, on-site gym facilities and secure underground parking. Material Information SummaryLayout: 2 bedrooms and 2 bathrooms (typical for a unit like Flat 12).Separate kitchen and reception area with balconyDeposit: 5 weeksUtilities: Not included in the Rent. Electricity, Water , WI-FI , ( No Gas), and council tax must be paid separately and are excluded from monthly rent.Safety: 24h conciergeWater & Sewerage: Supplied by Thames WaterBroadband:Providers such as BT, VIrgin SkyLocation & Accessibility:Very central London location near London Underground Sloane Square station (District/Circle lines) and Victoria transport hub.Flood Risk & Environment:This postcode is rated as low flood riskPlanning & Development:There's no widely reported major redevelopment affecting Chelsea Gate Apartments itself. Nearby area planning is typical of central London - periodic small developments, façade works, or infrastructure projects.Mining/ Ground Risk:not a historic mining area, so no coal mining risk or subsidence from mining,Electricity, Heating & Hot Water:Flats in Chelsea Gate generally use electric heating and hot water (electric heaters/immersion heaters) rather than gas.Electricity is usually supplied directly to each flat and paid for by the occupier (tenant/owner) through contract with a chosen supplier - you set up your own account with the energy provider and pay the bill.Access: Step free access with secure front door with key fob/ keycode entry
--- Property Details --- Type: Flat Bedrooms: 2 Bathrooms: 2 Rent: £4,117 per month Deposit: £4,750.38 Furnished: Furnished EPC Rating: B Available From: 04 May, 2026 Minimum Tenancy: 6 Months Bills Included: Broadband View Offers Postcode: N1 7GU Listed By: OpenRent Landlord
Location
Address
2 Bed Flat, Ebury Bridge Road, SW1W, N1 7GU
City
N1 7GU
Features and Finishes
Furnished, EPC: B, Available: 04 May, 2026, Min tenancy: 6 Months, Bills: Broadband View Offers
Legal Notice
Our comprehensive database is populated by our meticulous research and analysis of public data. MirrorRealEstate strives for accuracy and we make every effort to verify the information. However, MirrorRealEstate is not liable for the use or misuse of the site's information. The information displayed on MirrorRealEstate.com is for reference only.