2 Bed Flat, Gilmartin Grove, L6, N1 7GU
Property Details
2
1
Flat
Description
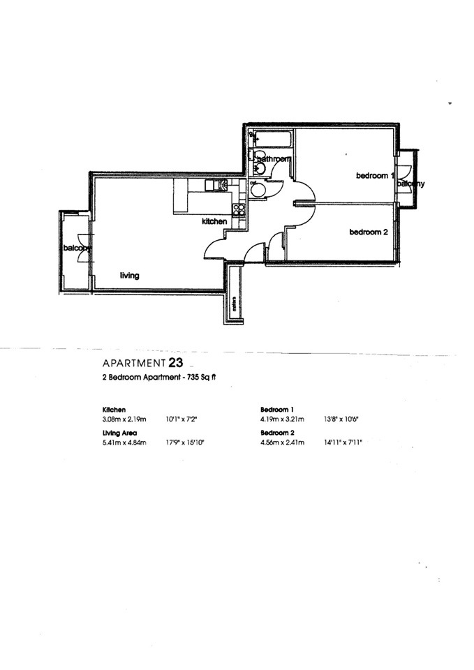
2 BEDROOMED contemporary apartment at Gilmartin Grove on Low Hill, 2/300m from hospital and university.Particularly popular with medical and hospital staff and University students as complexes very close. see map.The flat is located on the top floor at the front of the building having spectacular views over the city to the river Mersey and Welsh hills.The flat benefits from the best views over most others in the development and also it's particular layout is better suited to shift workers with bedrooms situated at the rear. See Floor Plan. Easy walking distance to City Centre.The flat is fully furnished with top quality furniture and essential fittings and white goods ready to live in.The apartment is worth serious consideration and it's benefits will be fully appreciated during any viewings. You will see for yourself the stunning views and level and spacious size of accommodation and you are sure not to be disappointed. The double bedrooms are of similar size making the flat suitable for equal sharing.Monthly rent reduced to a very competitive £900 to encourage quick let, on a standard tenancy agreement with usual deposits and referencesFor further information or to arrange a viewing, please contact the owner Dave, who is a local landlord, by email or phone anytime 8-8pm. Please provide as much supporting information and details as possible with your inquiry to assist with processing. Please answer pre-viewing questionnaire. Thank you for your interest.Specification SummaryDevelopment completely closed by a secure fence with gated,secure vehicle and pedestrian entry.Allocated parking space and visitor spaces.Deck balcony to front and rear of flat.Fully fitted beech kitchen with integrated appliances including:Oven, hob, extractor fan, washer dryer and under counter fridge and freezer.Modern stylish sanitary ware with thermostatic shower, wall tiling, large mirror and heated towel rail and wall heater.2 double bedroomsRecent new carpets and mattress.Telephone point. HyperOptics line installed with possible high speeds, allowing quick changeover.Communal TV aerial + sky optionAudio entry system with handsetElectric heating throughoutBlackout blinds and curtains to bedrooms.
--- Property Details --- Type: Flat Bedrooms: 2 Bathrooms: 1 Rent: £900 per month Deposit: £900 Furnished: Furnished EPC Rating: D Available From: 09 April, 2026 Minimum Tenancy: 6 Months Bills Included: Broadband View Offers Postcode: N1 7GU Listed By: OpenRent Landlord
Location
Address
2 Bed Flat, Gilmartin Grove, L6, N1 7GU
City
N1 7GU
Features and Finishes
Furnished, EPC: D, Available: 09 April, 2026, Min tenancy: 6 Months, Bills: Broadband View Offers
Legal Notice
Our comprehensive database is populated by our meticulous research and analysis of public data. MirrorRealEstate strives for accuracy and we make every effort to verify the information. However, MirrorRealEstate is not liable for the use or misuse of the site's information. The information displayed on MirrorRealEstate.com is for reference only.