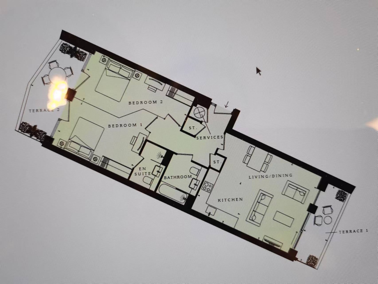
2 Bed Flat, Merino Gardens, E1W, N1 7GU
Property Details
2
2
Flat
Description
This is a luxurious 2-bedroom apartment in Merino Garden, E1W London Dock E1. Comprising ample open-plan living area, 2 modern bathrooms, bespoke fitted galley kitchen with appliances and full height windows.London Dock by St George, situated in the heart of Wapping, just moments from Tower Bridge, the Tower of London, St Katharine Docks and the City. With an eclectic mix of cafés, bars, restaurants and shops on Gauging Square and along the Pennington Street Warehouse, London Dock will be transformed into a hub for leisure, culture and commerce.Nestled between two new landscaped gardens, Merino Wharf is a beautifully tranquil place. The colourful Market Garden is a naturally soothing space where the whole community can take time out and relax. Then, tucked away in the heart of Merino Wharf you will also discover the calm and peaceful oasis that is the Water Garden, a private locale uniquely reserved for residents and a special spot to savour, whatever the season.As for the interiors, natural light floods the apartments through floor-to-ceiling windows, creating a breathtaking sense of space, while bespoke bathrooms offer pure relaxation. Each modern apartment amplifies space and style, with timber herringbone flooring, composite worktops in the kitchen and metro tiles adorning the bathroom.______________________________________________________Additional Info:- No Smokers- Bills not included- Holding Deposit: 1-week rent- Tenancy Deposit: 5-week rent- No Company Let
--- Property Details --- Type: Flat Bedrooms: 2 Bathrooms: 2 Rent: £3,800 per month Deposit: £4,384.61 Furnished: Furnished EPC Rating: B Available From: 11 June, 2026 Minimum Tenancy: 12 Months Bills Included: Broadband View Offers Postcode: N1 7GU Listed By: OpenRent Landlord
Location
Address
2 Bed Flat, Merino Gardens, E1W, N1 7GU
City
N1 7GU
Features and Finishes
Furnished, EPC: B, Available: 11 June, 2026, Min tenancy: 12 Months, Bills: Broadband View Offers
Legal Notice
Our comprehensive database is populated by our meticulous research and analysis of public data. MirrorRealEstate strives for accuracy and we make every effort to verify the information. However, MirrorRealEstate is not liable for the use or misuse of the site's information. The information displayed on MirrorRealEstate.com is for reference only.