2 Bed Flat, Portnall Road, W9, N1 7GU
Property Details
2
1
Flat
Description
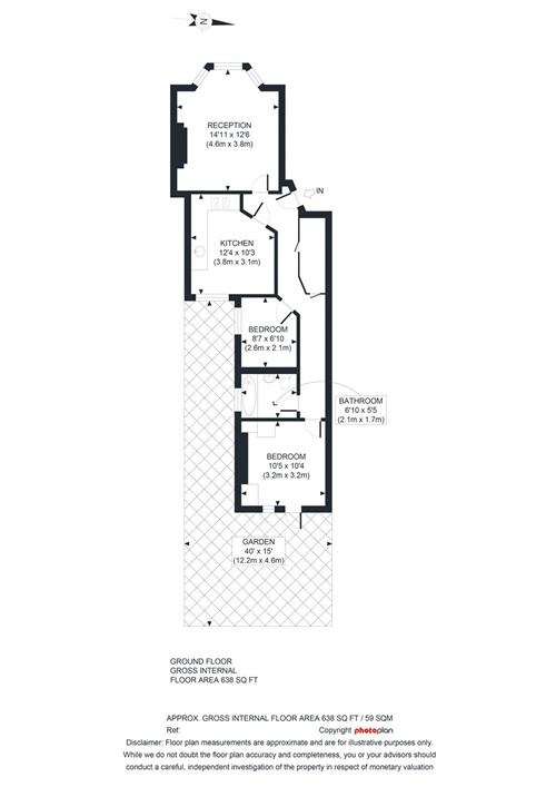
This well presented period ground floor garden flat consists of two bedrooms with the master room boasting access to a sole-access private garden, with a beautiful mature tree, a single second bedroom, ideal for home working or as a nursery. The property has a bright and airy reception room with feature fireplace, a spacious kitchen/breakfast room and fully tiled bathroom with shower. Located on Portnall Road, the property is within easy reach of a wide selection of shops, cafes, bars and restaurants both in Maida Vale and on Salusbury Road, Queens Park. The closest station is Queen's Park (Bakerloo Line) which is a stone's throw away. This is an ideal property for a couple. Pets are very welcome. Photos taken before current rental as tenants still occupying the property.
--- Property Details --- Type: Flat Bedrooms: 2 Bathrooms: 1 Rent: £2,325 per month Deposit: £2,325 Furnished: Unfurnished EPC Rating: D Available From: 17 April, 2026 Minimum Tenancy: 18 Months Bills Included: Broadband View Offers Postcode: N1 7GU Listed By: OpenRent Landlord
Location
Address
2 Bed Flat, Portnall Road, W9, N1 7GU
City
N1 7GU
Features and Finishes
Unfurnished, EPC: D, Available: 17 April, 2026, Min tenancy: 18 Months, Bills: Broadband View Offers
Legal Notice
Our comprehensive database is populated by our meticulous research and analysis of public data. MirrorRealEstate strives for accuracy and we make every effort to verify the information. However, MirrorRealEstate is not liable for the use or misuse of the site's information. The information displayed on MirrorRealEstate.com is for reference only.