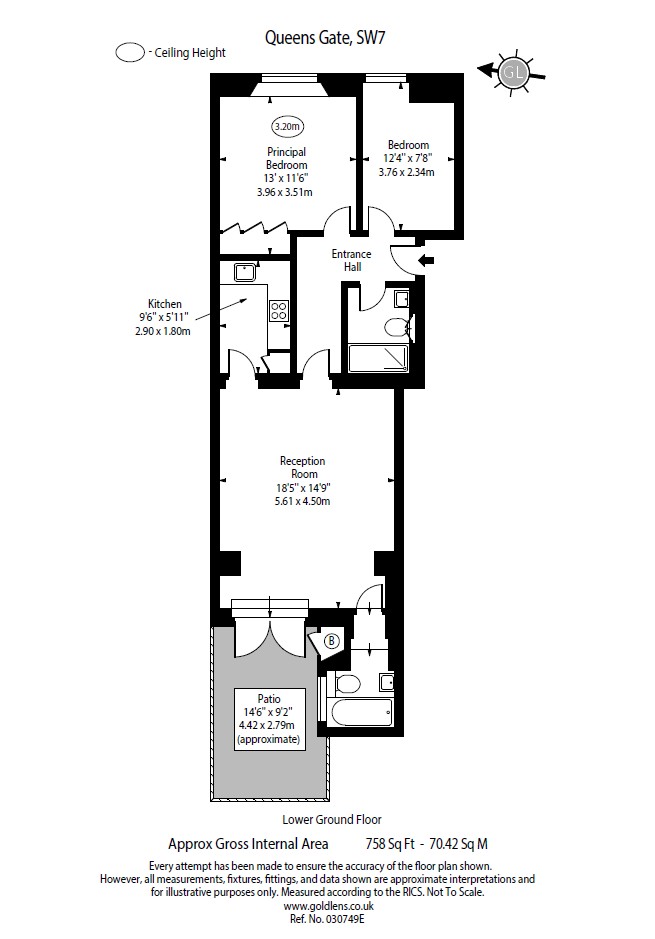
2 Bed Flat, Queens Gate, SW7, N1 7GU
Property Details
2
2
Flat
Description
We are proud to offer this delightful 2 bedroom, 2 bathroom flat in a great location.Available to move in from 09 March 2026. Property is offered unfurnished.Viewing highly recommended. Contact OpenRent today for more details or to arrange a viewing! SummaryRent £4,150.00 per month (£957.69 per week)Deposit / Bond is £4,788.46Minimum tenancy is 6 monthsMaximum number of tenants is 4
--- Property Details --- Type: Flat Bedrooms: 2 Bathrooms: 2 Rent: £4,150 per month Deposit: £4,788.46 Furnished: Unfurnished EPC Rating: D Available From: to move in from 09 March 2026 Minimum Tenancy: 6 Months Bills Included: Broadband View Offers Postcode: N1 7GU Listed By: OpenRent Landlord
Location
Address
2 Bed Flat, Queens Gate, SW7, N1 7GU
City
N1 7GU
Features and Finishes
Unfurnished, EPC: D, Available: to move in from 09 March 2026, Min tenancy: 6 Months, Bills: Broadband View Offers
Legal Notice
Our comprehensive database is populated by our meticulous research and analysis of public data. MirrorRealEstate strives for accuracy and we make every effort to verify the information. However, MirrorRealEstate is not liable for the use or misuse of the site's information. The information displayed on MirrorRealEstate.com is for reference only.