2 Bed Flat, Rannoch Grove, EH4, N1 7GU
Property Details
2
1
Flat
Description
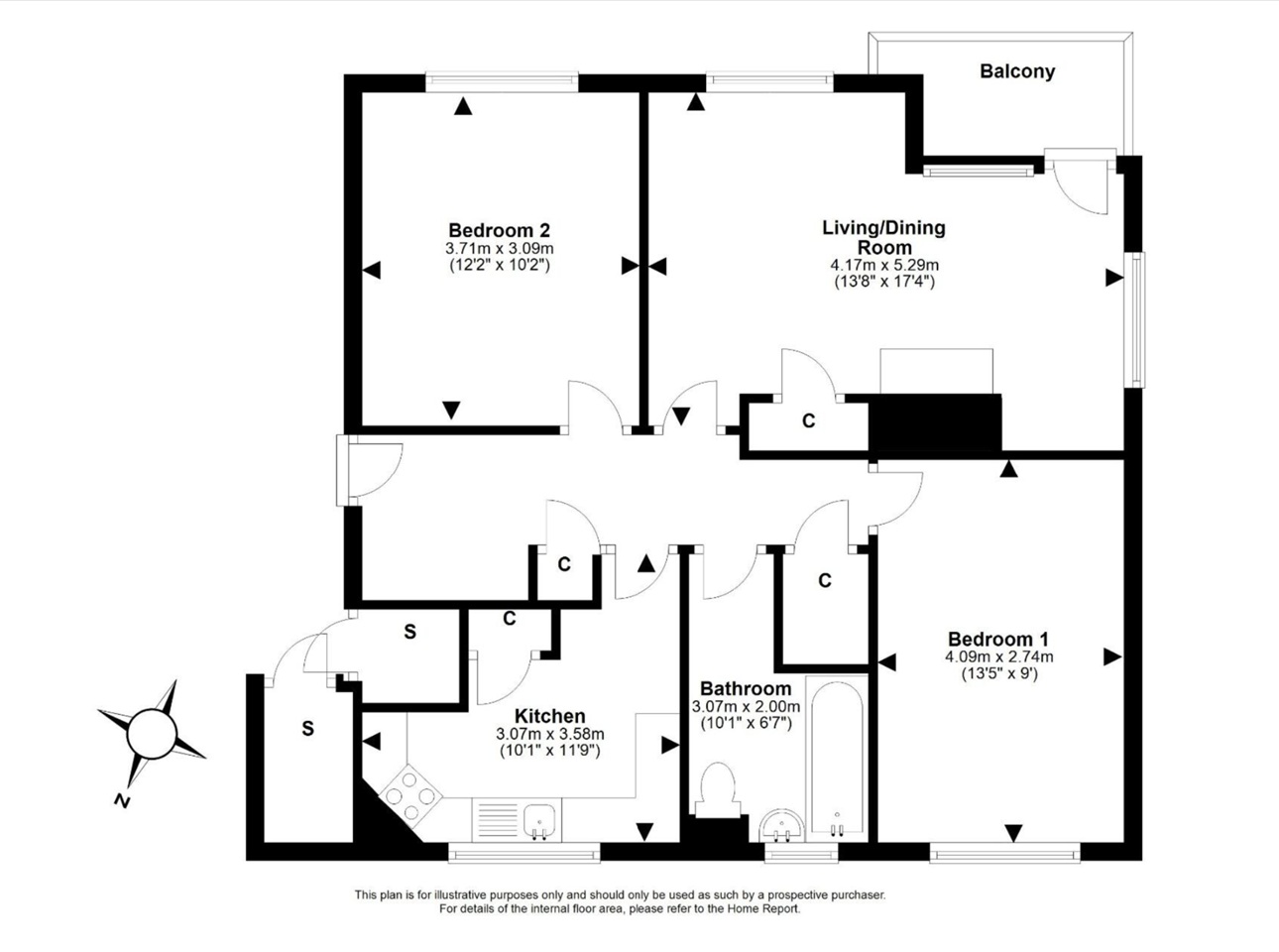
The property offers bright and well-proportioned accommodation throughout, comprising a welcoming hallway with built-in storage and a spacious lounge/dining area with windows to the front and side, providing excellent natural light and access to a private balcony. The modern, recently refurbished kitchen is fully equipped with a dishwasher, washing machine, microwave, oven and hob, and fridge freezer. There are two bright and spacious double bedrooms, along with a partially tiled bathroom featuring a white three-piece suite and an electric shower over the bath. The property benefits from double glazing and gas central heating, along with a secure entry phone system. Externally, there is a communal drying area to the rear and on-street parking. Council Tax Band B.
--- Property Details --- Type: Flat Bedrooms: 2 Bathrooms: 1 Rent: £1,095 per month Deposit: £1,400 Furnished: Furnished EPC Rating: C Available From: Today Bills Included: Broadband View Offers Postcode: N1 7GU Listed By: OpenRent Landlord
Location
Address
2 Bed Flat, Rannoch Grove, EH4, N1 7GU
City
N1 7GU
Features and Finishes
Furnished, EPC: C, Available: Today, Bills: Broadband View Offers
Legal Notice
Our comprehensive database is populated by our meticulous research and analysis of public data. MirrorRealEstate strives for accuracy and we make every effort to verify the information. However, MirrorRealEstate is not liable for the use or misuse of the site's information. The information displayed on MirrorRealEstate.com is for reference only.