2 Bed Flat, Rutland Court, SE5, N1 7GU
Property Details
2
1
Flat
Description
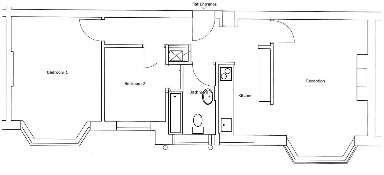
ESTATE AGENTS ARE NOT WELCOME - PLEASE DO NOT CALLNOTE THIS IS CURRENTLY ONLY AVAILABLE ON SHORT LET FOR 2 MONTHS UNTIL 12th MAY 2025.Spacious two bedroom (one double and one single) flat on Denmark Hill / Herne Hill.Flat is being offered fully furnished and comprises the following accommodation: One double bedroom, one single bedroom or study, one bathroom, reception and kitchen with all modern conveniences including washer dryer. Dish washer now being added. Part or wholly unfurnished also possible.Please note that the single bedroom is only suitable for two children sharing or one adult. This room can also be used as a study if only one bedroom is required. This flat is situated within a two block private development with a lovely shared garden. Private communal car parking on site is also available. The flat is located in the rear block at first floor and is a very quiet and bright flat (South facing). The building has a lift in it. A bicycle shed is available on site.Excellent train and bus links into central London from Herne Hill station, North Dulwich station and Denmark Hill station (under 10 min) all within easy walking distance. Trains to London Victoria, Blackfriars or London Bridge take no more than 15min. Buses to Oval tube station or Elephant and Castle take no more than 25min.The local amenities around the area include Ruskin Park, Brockwell Park and Dulwich Park, a local Sainsbury 15min walk away and a sports club with indoor swimming pool, gym and tennis courts also a 15 min walk away. Local shops, bars and restaurants can be found a short distance away by Herne Hill station, Lordship Lane in East Dulwich and Dulwich Village. Kings College Hospital is only a 10min walk away.A deposit applies. Advertised rent excludes the following bills: water, electricity, gas, internet and council tax.Flat cleaned professionally and disinfected at start of tenancy. Carpets are steamed at start of tenancy. ESTATE AGENTS ARE NOT WELCOME - PLEASE DO NOT CALL
--- Property Details --- Type: Flat Bedrooms: 2 Bathrooms: 1 Rent: £1,755 per month Deposit: £1,755 Furnished: Unfurnished EPC Rating: C Available From: ON SHORT LET FOR 2 MONTHS UNTIL 12th MAY 2025 Minimum Tenancy: 1 Months Bills Included: Broadband View Offers Postcode: N1 7GU Listed By: OpenRent Landlord
Location
Address
2 Bed Flat, Rutland Court, SE5, N1 7GU
City
N1 7GU
Features and Finishes
Unfurnished, EPC: C, Available: ON SHORT LET FOR 2 MONTHS UNTIL 12th MAY 2025, Min tenancy: 1 Months, Bills: Broadband View Offers
Legal Notice
Our comprehensive database is populated by our meticulous research and analysis of public data. MirrorRealEstate strives for accuracy and we make every effort to verify the information. However, MirrorRealEstate is not liable for the use or misuse of the site's information. The information displayed on MirrorRealEstate.com is for reference only.