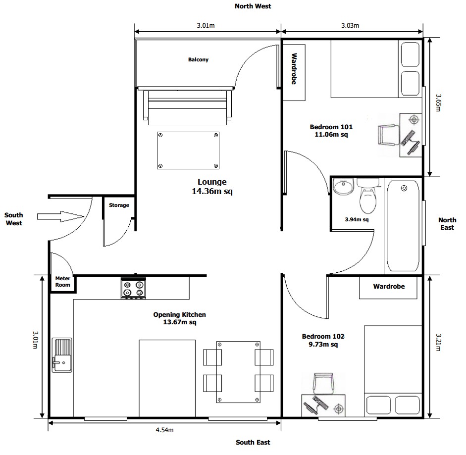
2 Bed Flat, Sir Henry Parkes Road, CV4, N1 7GU
Property Details
2
1
Flat
Description
Property descriptionNewly refurbished 2 bedroom flat close to the University of Warwick.Environment introductionA 2 bedroom high-spec flat available in excellent condition close to Warwick University. The kitchen is fully equipped including washing machine, fridge-freezer, hob, oven, toaster, kettle, microwave.Rent includes all utilities plus top of the range Internet. House is well maintained and constantly upgraded. The landlord is accredited.There is off-street parking and unrestricted parking in the street.This property must be viewed to be fully appreciated.EPC:C
--- Property Details --- Type: Flat Bedrooms: 2 Bathrooms: 1 Rent: £1,716 per month Deposit: £1,584 Furnished: Furnished EPC Rating: C Available From: 15 September, 2026 Minimum Tenancy: 12 Months Bills Included: Broadband View Offers Postcode: N1 7GU Listed By: OpenRent Landlord
Location
Address
2 Bed Flat, Sir Henry Parkes Road, CV4, N1 7GU
City
London
Features and Finishes
Furnished, EPC: C, Available: 15 September, 2026, Min tenancy: 12 Months, Bills: Broadband View Offers
Legal Notice
Our comprehensive database is populated by our meticulous research and analysis of public data. MirrorRealEstate strives for accuracy and we make every effort to verify the information. However, MirrorRealEstate is not liable for the use or misuse of the site's information. The information displayed on MirrorRealEstate.com is for reference only.