2 Bed Semi-Detached House, Chaucer Drive, SE1, N1 7GU
Property Details
2
2
House
Description
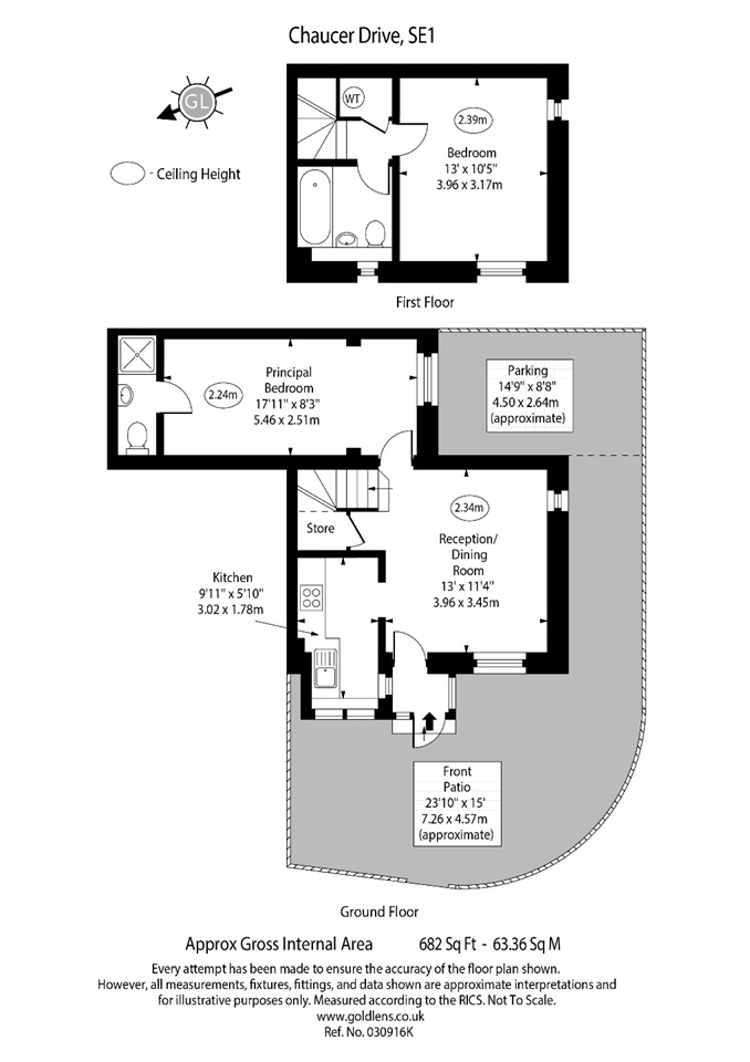
This spacious two-bedroom property is arranged over two levels of a beautiful semi-detached house. Recently repainted throughout, it offers a bright living area, a separate kitchen, two generously sized double bedrooms, and two bathrooms.2 Bedrooms2 Bathrooms 1 reception Driveway Unfurnished
--- Property Details --- Type: House Bedrooms: 2 Bathrooms: 2 Rent: £2,250 per month Deposit: £2,596.15 Furnished: Unfurnished EPC Rating: E Available From: Today Minimum Tenancy: 12 Months Bills Included: Broadband View Offers Postcode: N1 7GU Listed By: OpenRent Landlord
Location
Address
2 Bed Semi-Detached House, Chaucer Drive, SE1, N1 7GU
City
N1 7GU
Features and Finishes
Unfurnished, EPC: E, Available: Today, Min tenancy: 12 Months, Bills: Broadband View Offers
Legal Notice
Our comprehensive database is populated by our meticulous research and analysis of public data. MirrorRealEstate strives for accuracy and we make every effort to verify the information. However, MirrorRealEstate is not liable for the use or misuse of the site's information. The information displayed on MirrorRealEstate.com is for reference only.