2 Ella Grove, Chelsea VIC 3196
Property Details
3
1
House
Description
Property Details: • Type: House
• Bedrooms: 3 • Bathrooms: 1
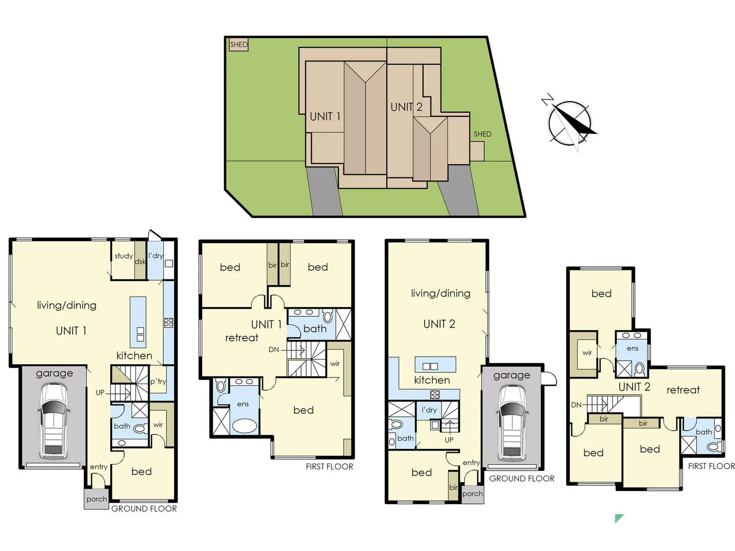
Description: Opportunity at this scale has a way of feeling different from the moment it comes into view, and this 3-bedroom home on a commanding 627 sq. metre (approx.) corner allotment has that quality in spades. Approved plans for two double-storey, 4-bedroom, 3-bathroom townhomes are already in hand, or start entirely fresh with your own vision for the site (STCA), because it's the possibilities of what it permits that make this address so very hard to walk away from. The existing home starts in the welcoming lounge that flourishes with so much natural light, illuminating its hardwood floors beside a stone-topped kitchen with stainless steel appliances, making a compelling case for easy living as-is. Three bedrooms along the hallway include two with built-in robes, neatly placed around a central bathroom with a full laundry spreading beyond the kitchen to the genuinely significant and fully-fenced rear yard. Each of the two proposed residences would enjoy driveway entry from Cross Road, with a large surrounding yard, open-plan lounge and dining space, an upper-level retreat, full bathrooms on each level, and a master suite with walk-in robe and twin-vanity ensuite wonderfully equipped and beautifully balanced for easy resale or rentability in a location that so many crave. For now, evaporative cooling, ducted heating, ducted vacuum, and camera security ensure year-round comfort in its current form, with easy convenience to Edithvale and Chelsea primary schools, Cornish College, village shopping, parklands, wetlands, public transport, and Port Phillip beaches all on hand. Whatever shape your ambition takes, this corner has already cleared the way. Make your move.
Location
Address
2 Ella Grove, Chelsea VIC 3196
City
Chelsea
Legal Notice
Our comprehensive database is populated by our meticulous research and analysis of public data. MirrorRealEstate strives for accuracy and we make every effort to verify the information. However, MirrorRealEstate is not liable for the use or misuse of the site's information. The information displayed on MirrorRealEstate.com is for reference only.