2 Gratwicke Road, Worthing, West Sussex, BN11 4BH
Property Details
None
Description
Property Details: • Type: N/A • Tenure: N/A • Floor Area: N/A
Key Features: • Central Location • Income Producing • 100% Rate Relief (STS) • Busy Thoroughfare
Location: • Nearest Station: N/A • Distance to Station: N/A
Agent Information: • Address: 12 Chapel Road, Worthing, BN11 1BJ
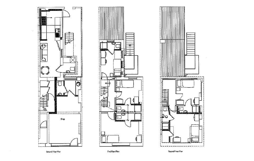
Full Description: LocationIdeally situated in Worthing town centre in Gratwicke Road and close to busy Rowlands Road with its comprehensive shopping amenities, restaurants, pubs. The nearest station is Worthing which is approximately 0.8 miles away with bus services running regularly nearby and ample street parking available.DescriptionThis mid-terraced property offers a unique opportunity to acquire a well-maintained, mixed-use building comprising a fully let ground-floor commercial premises and a fully let House in Multiple Occupation (HMO) across upper floors. We have been informed the property is generating a rental income of £46,704 per annum, with the commercial unit producing £8,304 annually and the HMO generating £38,400.PriceOffers are invited in the region of £500,000 for the freehold interest.Tenure CommentsFreehold investmentEPCThe ground floor has an EPC rating of B - 44.The flat has an EPC rating of E - 54.VATWe are informed that VAT is not applicable on the terms quoted.UseWe understand the premises benefit from Class E use however, we would advise any potential tenant to check with the Planning Department to ascertain if their use is permitted.Legal FeesEach party is responsible for their own legal fees in this transaction.ViewingStrictly by appointment with Sole Agents, Jacobs Steel.
Location
Address
2 Gratwicke Road, Worthing, West Sussex, BN11 4BH
City
West Sussex
Features and Finishes
Central Location, Income Producing, 100% Rate Relief (STS), Busy Thoroughfare
Legal Notice
Our comprehensive database is populated by our meticulous research and analysis of public data. MirrorRealEstate strives for accuracy and we make every effort to verify the information. However, MirrorRealEstate is not liable for the use or misuse of the site's information. The information displayed on MirrorRealEstate.com is for reference only.