2 Hillcrest Street, Emerald QLD 4720
Property Details
2
2
Duplex
Description
Property Details: • Type: Duplex
• Bedrooms: 2 • Bathrooms: 2
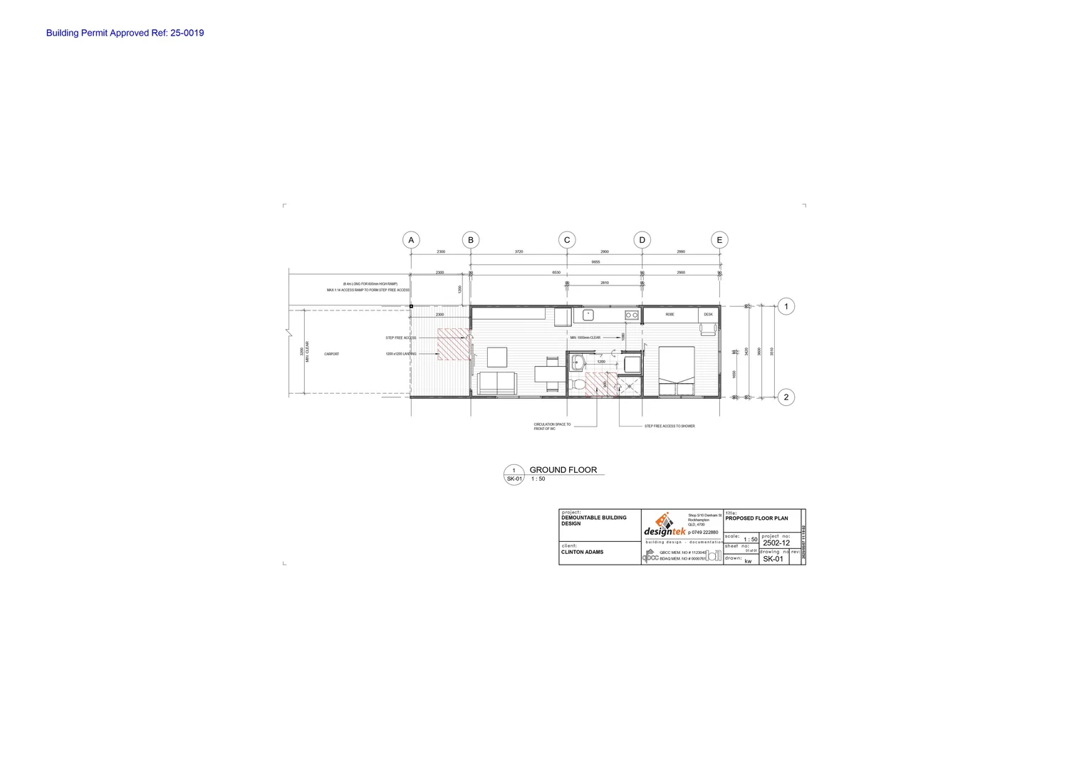
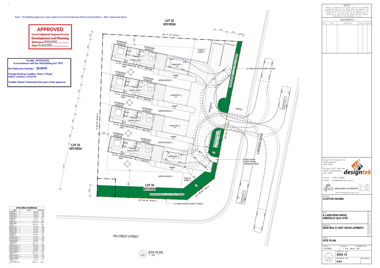
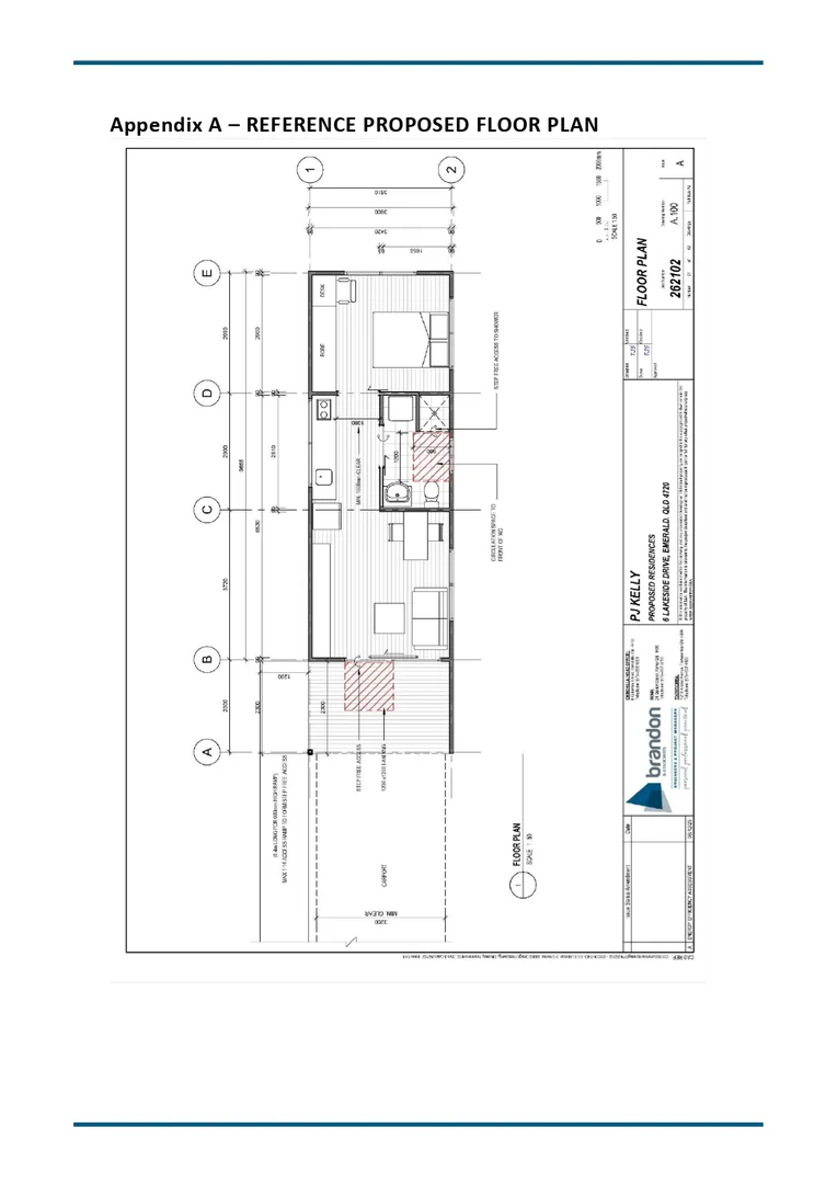
Description: RARE OPPORTUNITY NEW TOWNHOUSES ONLY $619000 APPROVED FOR 4 TOWNHOUSES INITIAL RENTAL RETURN EST $41600 PER ANNUM WITH FURNITURE EST $45240 PER ANNUM WOOLWORTHS SHOPPING CENTRE-3 KM EMERALD AIRPORT -1 KM SCHOOLS -1.2 KM POST OFFICE -3 KM HARDWORK IS DONE -APPROVALS ,ALL SERVICES IN GROUND ,2 TOWNHOUSES BUILT (WILL BE EARNING INCOME) APPROVED FOR 4 TOWNHOUSES (POWER,WATER,SEWERAGE) INSTALLED FOR 4 TOWMHOUSES/ ALL SERVICES IN GROUND NOW. 2 BRAND NEW TOWNHOUSES BUILT -READY FOR OCCUPATION -2 MORE TOWNHOUSES TO BE BUILT AT OWNERS CONVENIENCE. RENTAL APPRAISAL -$400 EACH PER WEEK - FULL CHRC APPROVAL FOR 4 TOWNHOUSES -(APPROVEL CHRC 10 JUNE 2025) INFRASTRUCTURE CHARGES/HEADWORKS -NIL OWING ESTIMATE RENTAL RETURN WHEN NEXT 2 TOWNHOUSES COMPLETED - $400 EACH X 4 = $83200 PER ANNUM RATES - $1,755.56 RARE OPPORTUNITY TO BUY BRAND NEW TOWNHOUSES OFFERING TAX DEPRECIATION AND SOLID RENTAL RETURN . GRANITE KITCHEN TOPS WITH HOTPLATES AND HEAPS OF BENCH SPACE . LARGE MAIN BEDROOM WITH BUILTIN MIRROR CUPBOARDS AND FEATURE OFFICE DESK BUILT IN HUGE BATHROOM WITH SHOWER . LARGE MAIN LIVING ROOM. LARGE DECK TO FRONT . SINGLE CAR ACCOMODATION OUTSIDE CONCRETE PATIO BETWEEN TOWNHOUSES Disclaimer: We have in preparing this advertisement used our best endeavours to ensure the information contained is true and accurate but accept no responsibility and disclaim all liability in respect to any errors, omissions, inaccuracies, or misstatements contained. Interested parties should make their own enquiries to verify the information contained in this advertisement.
Location
Address
2 Hillcrest Street, Emerald QLD 4720
City
Emerald
Features and Finishes
None
Legal Notice
Our comprehensive database is populated by our meticulous research and analysis of public data. MirrorRealEstate strives for accuracy and we make every effort to verify the information. However, MirrorRealEstate is not liable for the use or misuse of the site's information. The information displayed on MirrorRealEstate.com is for reference only.