2 Jillara Way, Lesmurdie WA 6076
Property Details
4
2
House
Description
Property Details: • Type: House
• Bedrooms: 4 • Bathrooms: 2
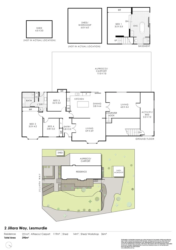
Description: Tucked away within a whisper-quiet cul-de-sac and backing directly on to natural bushland, this secluded 4 bedroom 2 bathroom two-storey hills haven feels like a private escape elevated above the valley - a place where the pace softens, the birds provide the soundtrack and the leafy views become part of everyday life. Set on over half-an-acre of beautifully-established grounds, the home itself is anything but ordinary, delivering a distinctive blend of character, comfort and thoughtful modern upgrades that make it stand apart from anything else currently on the market. Years of love and careful refinement are evident at every turn, from the stunning brand-new kitchen to the generous dual living zones designed for both connection and retreat. There is also a spacious activity room, study or potential fifth-bedroom option that adds to the fantastic floor-plan flexibility already on offer. The lower-level master suite is a true sanctuary in its own right - king-sized in scale and complete with a kitchenette and separate access, offering exciting flexibility for guests, extended family or even a discreet home-business setup. And don't forget about the magnificent outdoor entertaining on the deck, splendidly overlooking all of the surrounding treetops. Clever separation throughout the abode ensures everyone enjoys their own space, while the mature reticulated gardens, secure gated entry and huge powered workshop with rear-driveway access complete a property that is as practical as it is peaceful. Outstanding schools (including Falls Road Primary School, St Brigid's College, Mazenod College and Lesmurdie Senior High School), community sporting amenities and everyday conveniences sit nearby, while the breathtaking Bickley and Carmel valleys unfold right on your doorstep - a playground of nature, wineries and weekend adventures. Moments away, Kalamunda Village hums with life, offering cosy cafés, acclaimed eateries, boutique shopping and gorgeous walking trails to explore at your leisure. Surrounded by quality homes and positioned within easy reach of the very best of hills living in serene Lesmurdie, this is a residence that steps well beyond the conventional. Indulge in a place of space, serenity and unique personality, ready to be enjoyed from the moment you arrive. Features include, but are not limited to: • 4 bedrooms • 2 bathrooms • Large and versatile study, activity room or 5th bedroom • Stunning timber floors • Double doors opening into a huge front living room with a bay window • New open-plan dining and kitchen area • Stone kitchen bench tops, attractive tiled splashbacks and Hamptons-style "shaker" cabinetry • Island breakfast bar • Classy modern range-hood, hotplate, oven and dishwasher appliances • Double-door access into a separate family/second living room - with a built-in computer nook in the corner • Carpeted bedrooms • Private downstairs master suite/retreat with wall-to-wall built-in wardrobes and an enormous ensuite bathroom - central free-standing bathtub, separate shower, toilet, vanity, outdoor access • Spacious 2nd bedroom with a bay window and built-in robes • 3rd and 4th bedrooms with BIR's • Fully-tiled main family bathroom with double rain/hose showers and a powder vanity • Separate 2nd toilet - next to the laundry • Over-head and under-bench laundry storage • External laundry access • High storage capacity throughout • Outdoor alfresco-entertaining deck • Large powered rear workshop - with roller-door access • Wood-burner fireplace heater • Ducted and split-system air-conditioning • Ceiling fans • Down lights • Feature skirting boards • Side garden shed • Solar-hot-water system • Reticulated gardens • Single carport • Sealed driveways • 390sqm (approx.) of total indoor and outdoor living area • Huge 2,123sqm (approx.) block with ample parking space • Built in 1977 (approx.) Call AILEEN GIUMELLI Today on 0448896787 and secure your own Hills Hideaway!!!
Location
Address
2 Jillara Way, Lesmurdie WA 6076
City
Lesmurdie
Features and Finishes
None
Legal Notice
Our comprehensive database is populated by our meticulous research and analysis of public data. MirrorRealEstate strives for accuracy and we make every effort to verify the information. However, MirrorRealEstate is not liable for the use or misuse of the site's information. The information displayed on MirrorRealEstate.com is for reference only.