2 Trentham Street, Box Hill NSW 2765
Property Details
Vacant Land
Description
Property Details: • Type: Vacant Land
• Bedrooms: 0 • Bathrooms: 0
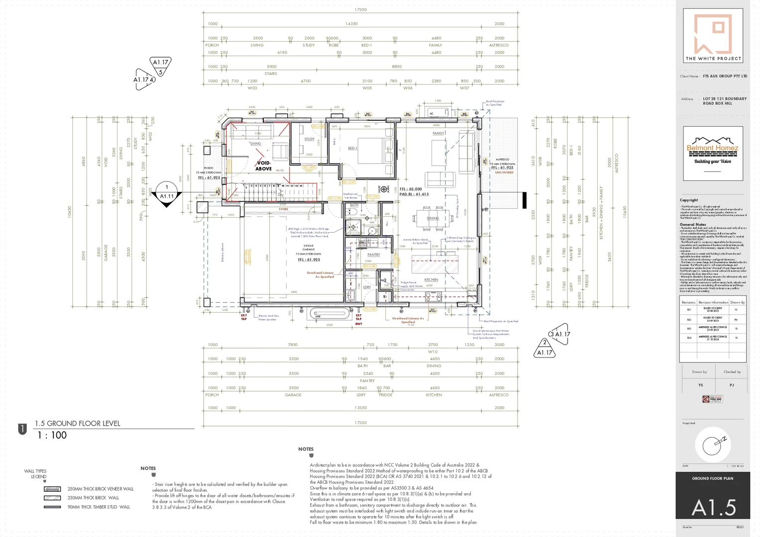
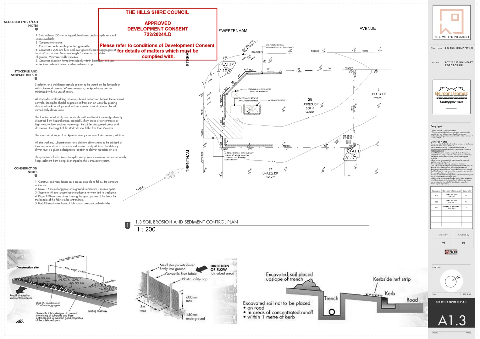
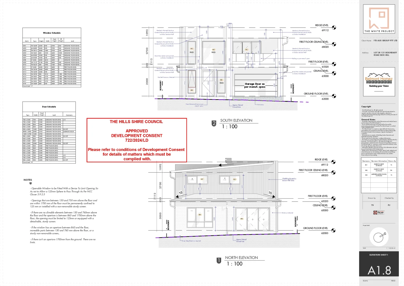
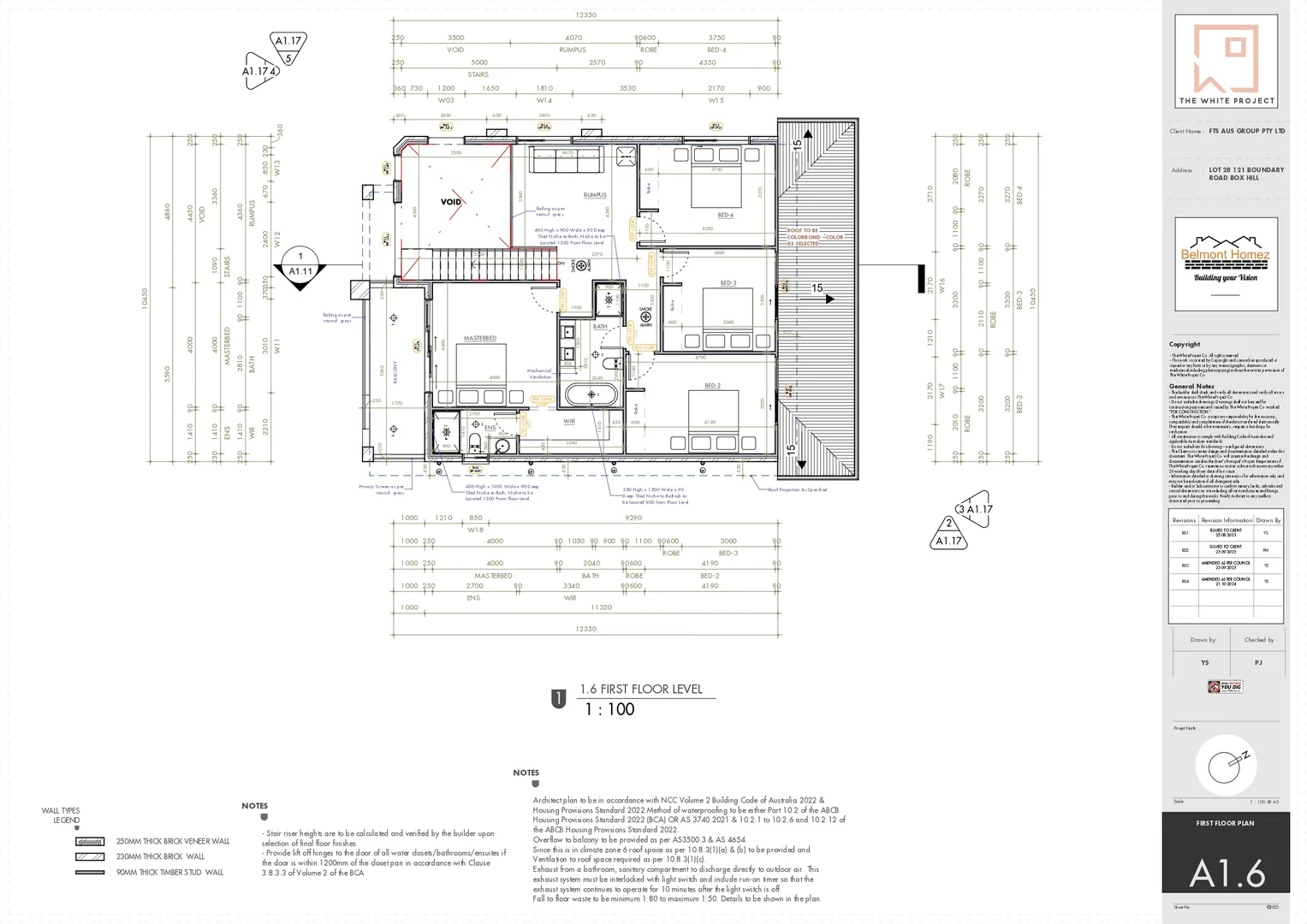
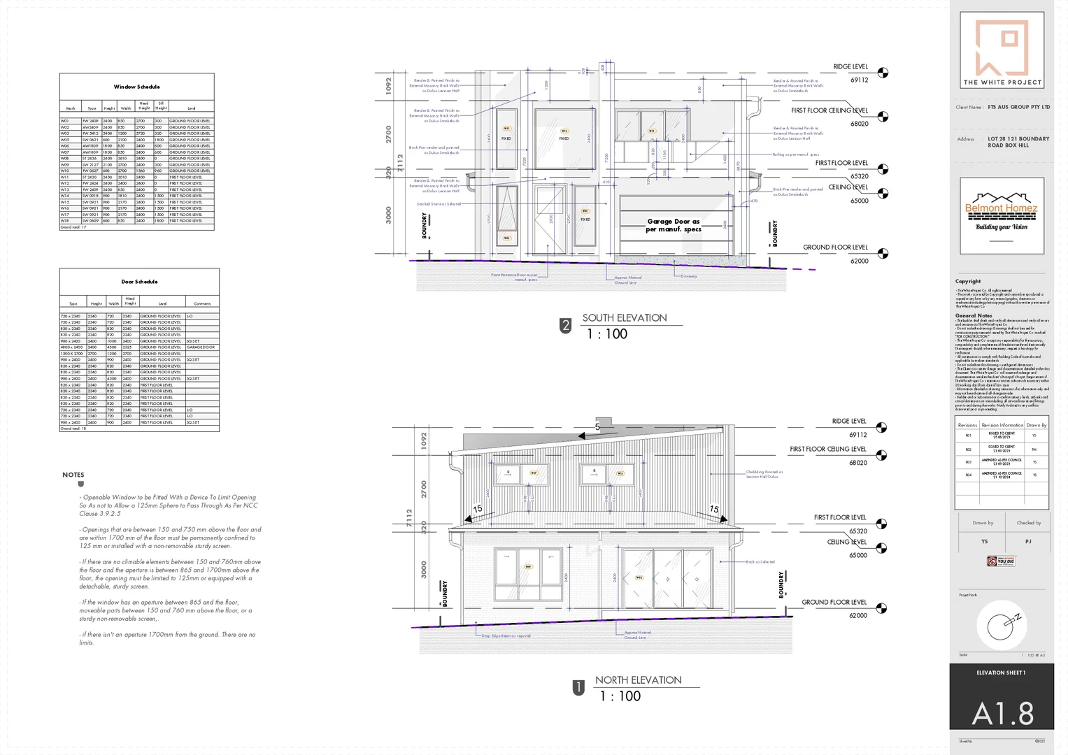
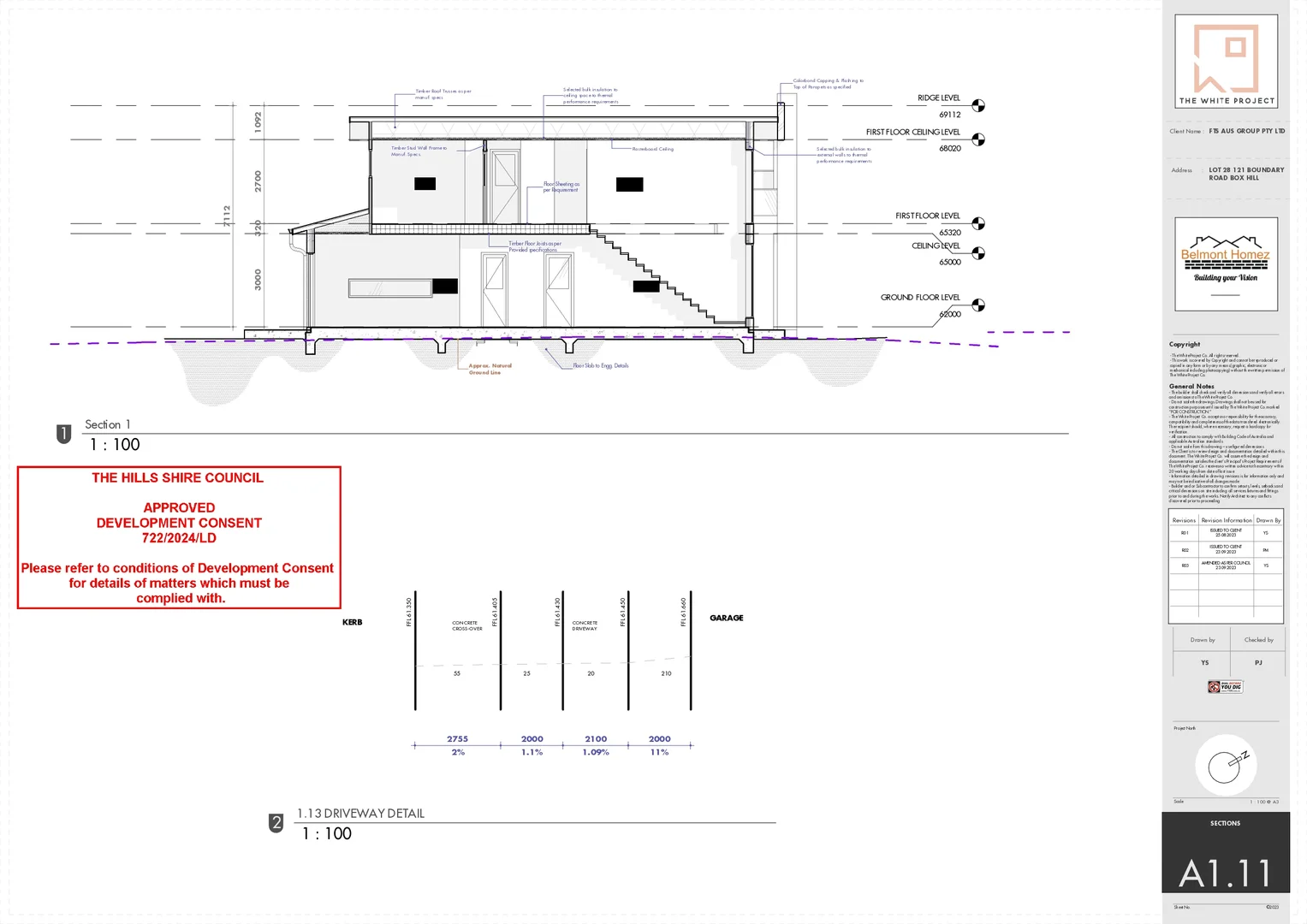
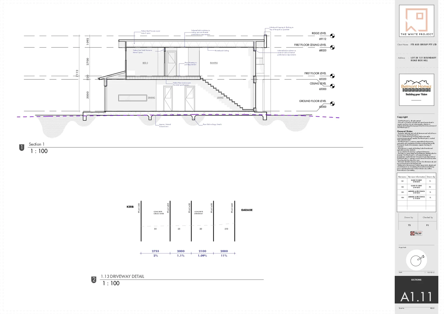
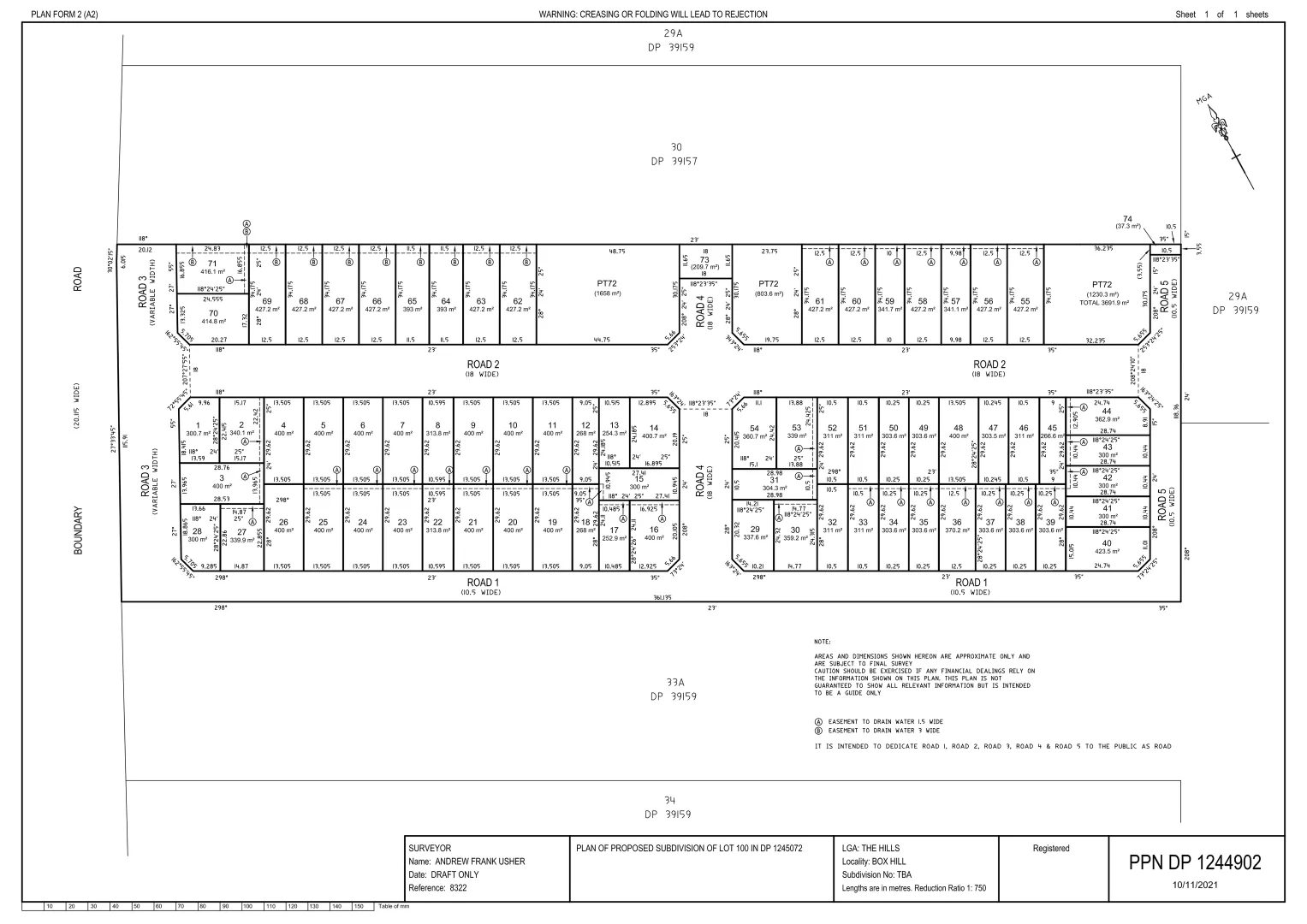
Description: Nirvana Estate Agents is excited to present this exceptional 300 sqm block of land in the sought-after Hills District of Box Hill. Vendor already spent money on DA Approved plans of Double storey house which will be part of the sale as complimentary from the Vendor. This is your chance to build a home tailored to your lifestyle-an opportunity to create a sanctuary that reflects your vision. With dimensions of 13.6m frontage and 22.8m depth, you can design a stylish single or double-storey residence, complete with your choice of a single or double garage. Located in the prestigious Hill Shire precinct of Box Hill, you'll enjoy close proximity to top schools, sporting fields, and shopping centers, all while being just a 10-minute drive from the Tallawong metro train station. Key Features: - Rectangular block with a 13.6m frontage and 22.8m depth, offering flexibility in your design. - Choose between a single or double-storey home, with the possibility of a single or double garage. - Nestled in the sought-after Hill Shire precinct of Box Hill, surrounded by excellent local amenities. - Close to schools, sporting fields, and shopping centers. - Registered block of land, ready for construction. - DA approved plans for a double storey house. - Just a short 10-minute drive to the Tallawong metro train station. - Short 6 minute drive to the local Carmel Village Shopping Centre. - 8 minute drive to Rouse Hill Regional Park. Seize this incredible opportunity to create your ideal living space in a master-planned community! Get in touch with Hardii on 0426 613 165 Disclaimer: Nirvana Real Estates, its directors, employees and related entities believe that the information contained herein is gathered from sources we deem to be reliable. We have no reason to doubt its accuracy, however we cannot guarantee it. All interested parties should make and rely upon their own enquiries.
Location
Address
2 Trentham Street, Box Hill NSW 2765
City
Box Hill
Features and Finishes
None
Legal Notice
Our comprehensive database is populated by our meticulous research and analysis of public data. MirrorRealEstate strives for accuracy and we make every effort to verify the information. However, MirrorRealEstate is not liable for the use or misuse of the site's information. The information displayed on MirrorRealEstate.com is for reference only.