20 John Street, Geelong West VIC 3218
Property Details
3
2
House
Description
Property Details: • Type: House
• Bedrooms: 3 • Bathrooms: 2
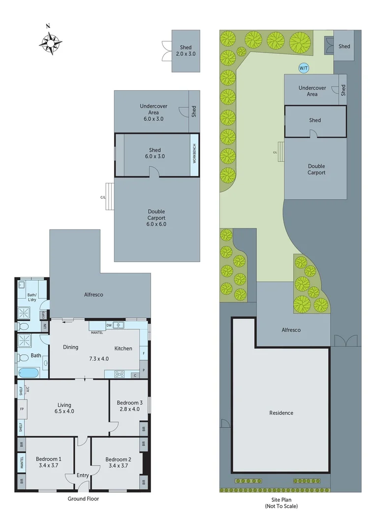
Description: This charming Geelong West home has just become available, offering space, character, and comfort; perfect for families seeking a well-located functional property. Step inside via the central hallway into a welcoming living room featuring a beautiful ornamental fireplace, built-in shelving, and a window seat with handy storage beneath. The light-filled living and dining areas create a warm and inviting atmosphere for everyday living. The kitchen is both stylish and practical, complete with pendant lighting, a striking original chimney feature, dishwasher, oven, 5-burner gas cooktop, rangehood, and a bold red splashback that ties in beautifully with the home's character touches. Glass doors from the dining area open seamlessly to a paved undercover entertaining space, perfect for year-round gatherings while overlooking the generous backyard. Accommodation includes three carpeted bedrooms, all with built-in robes, while the two front bedrooms also feature charming ornamental fireplaces. The updated bathroom is modern and eye-catching, with grey tones, white trim, a bath, walk-in shower, toilet, and a distinctive red door. A second shower and toilet are conveniently located off the separate laundry. Additional features include: - Heating and cooling with a split system in the central lounge and ducted heating throughout - Separate laundry for added practicality - Solar panels for energy efficiency - Water tank - Low-maintenance yard with vegetable garden and established fruit trees - Ample storage including two lockable sheds, a workshop, garden shed, and additional undercover space - Off-street parking with a double carport plus extra driveway space for up to two additional vehicles. Positioned in a highly sought-after location, the homes sits between Shannon Avenue's supermarkets and the vibrant shopping and cafe precinct of Pakington Street. Enjoy easy access to local parks including Bakers Reserve just across Elizabeth Street, along with nearby schools, childcare centres, and public transport options. This a fantastic opportunity to secure a spacious, character-filled home in a prime Geelong West location.
Location
Address
20 John Street, Geelong West VIC 3218
City
Geelong West
Features and Finishes
None
Legal Notice
Our comprehensive database is populated by our meticulous research and analysis of public data. MirrorRealEstate strives for accuracy and we make every effort to verify the information. However, MirrorRealEstate is not liable for the use or misuse of the site's information. The information displayed on MirrorRealEstate.com is for reference only.