20 Oxleasow Road, Redditch, Worcestershire, B98
Property Details
None
Description
Property Details: • Type: N/A • Tenure: N/A • Floor Area: N/A
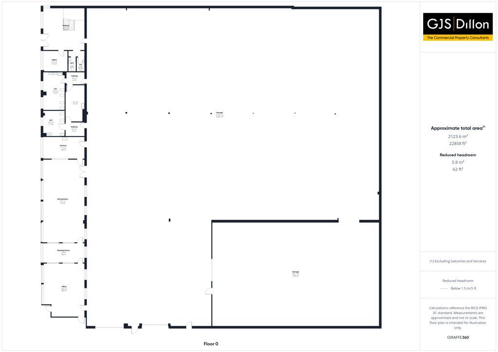
Key Features: • Ground and First Floor Offices 5,954 sq ft (553.20 sq m) • Warehouse / Industrial Space 20,296 sq ft (1,885.50 sq m) • Total area 26,250 sq ft (2,438.70 sq m) GIA • On site car parking for 30 cars • Eaves height of 6m throughout the warehouse
Location: • Nearest Station: N/A • Distance to Station: N/A
Agent Information: • Address: 7 Roman Way Business Centre, Berry Hill Industrial Estate, Droitwich, WR9 9AJ
Full Description: 20 Oxleasow Road is a detached industrial / warehouse property built circa 1980s. The property sits in a 1¼ acre plot and offers good exposure to Oxleasow Road, an accessible area surrounded by similar commercial occupiers. Externally the site has 30 car parking spaces to the front.Accessed separately to the car park is the rear yard area, which is part secure and part open for the parking of vehicles. Located off the secure yard is roller shutter access to the unit.There is a parcel of expansion land adjacent to the yard, which could be utilised to extend the unit or as additional yard area, which would also release the opportunity to add an extra roller shutter door.Internally, to the front of the unit there is office / welfare space arranged over the ground and first floor. At ground floor level there is a reception area, WCs, warehouse, canteen and office space. At first floor level there is a mix of open plan and cellular office space along with WCs and kitchenette facilities.The warehouse space is arranged to provide functional manufacturing space which includes work benches and storage space. The warehouse has a consistent eaves height across the unit of 6m.The property has a gas supply with a combi-boiler serving the office space and six gas blowers serving the warehouse area.LocationRedditch is located in north Worcestershire, approximately 14 miles south of Birmingham, 12 miles south west of Solihull and eight miles east of Bromsgrove. The town benefits from strong road communications with Junctions 2 and 3 of the M42 motorway lying approximately five miles to the north.
Location
Address
20 Oxleasow Road, Redditch, Worcestershire, B98
City
Worcestershire
Features and Finishes
Ground and First Floor Offices 5,954 sq ft (553.20 sq m), Warehouse / Industrial Space 20,296 sq ft (1,885.50 sq m), Total area 26,250 sq ft (2,438.70 sq m) GIA, On site car parking for 30 cars, Eaves height of 6m throughout the warehouse
Legal Notice
Our comprehensive database is populated by our meticulous research and analysis of public data. MirrorRealEstate strives for accuracy and we make every effort to verify the information. However, MirrorRealEstate is not liable for the use or misuse of the site's information. The information displayed on MirrorRealEstate.com is for reference only.