20 Shirley Street
Property Details
5
2
Owner
Description
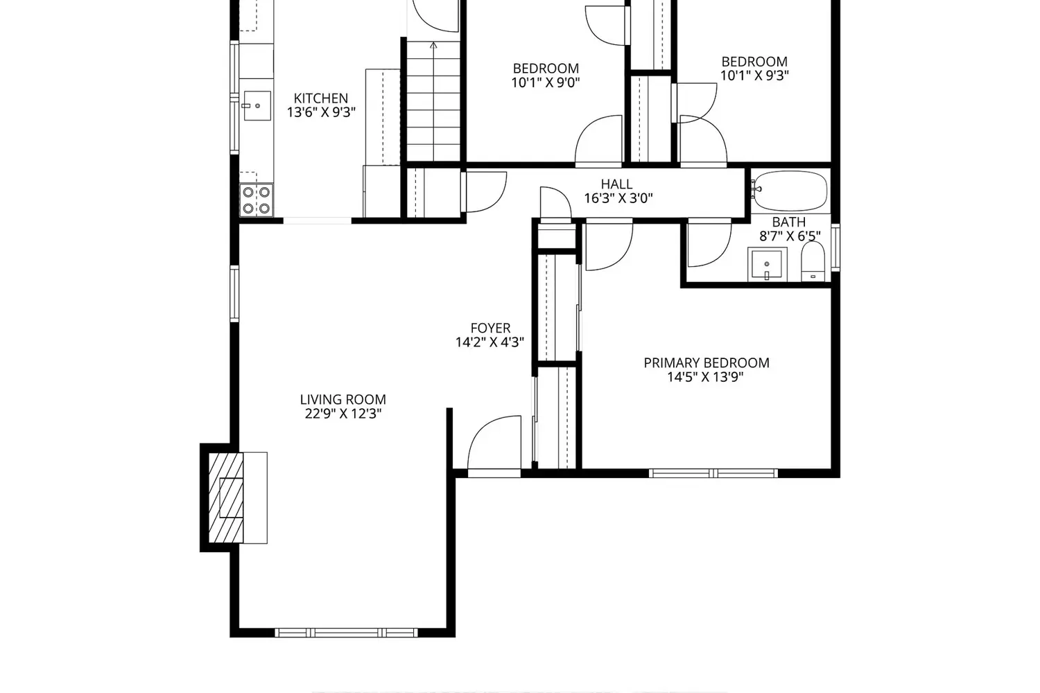
Welcome to this truly turn-key bungalow backing directly onto lush greenspace in highly sought-after University Gardens - where privacy, lifestyle, and income potential come together effortlessly. Tucked into a quiet, family-oriented neighbourhood just minutes from shopping, transit, and everyday amenities, this home offers the perfect blend of quality construction, thoughtful updates, and exceptional versatility. Lovingly maintained, it features cove mouldings and a cozy wood-burning fireplace anchoring the bright, open living and dining area. Large vinyl windows flood the space with natural light, highlighting updated flooring. The main level offers three generous bedrooms and a beautifully renovated kitchen with stone countertops, stainless steel appliances, and abundant cabinetry - stylish, modern, and functional. The professionally finished lower level adds exceptional versatility with a spacious in-law suite complete with two large bedrooms, an eat-in kitchen, bright family room, and 3-piece bath - ideal for multi-generational living or added income. Step outside to your private, fully fenced backyard oasis, featuring an expansive deck and a serene greenspace backdrop with no rear neighbours - perfect for entertaining, relaxing, or enjoying peaceful outdoor living. A rare opportunity in University Gardens that is completely move-in ready and not to be missed.
Location
Address
20 Shirley Street
City
Mooroolbark
Features and Finishes
None
Legal Notice
Our comprehensive database is populated by our meticulous research and analysis of public data. MirrorRealEstate strives for accuracy and we make every effort to verify the information. However, MirrorRealEstate is not liable for the use or misuse of the site's information. The information displayed on MirrorRealEstate.com is for reference only.