204/2A Major Street, Highett VIC 3190
Property Details
2
2
Apartment / Unit / Flat
Description
Property Details: • Type: Apartment / Unit / Flat
• Bedrooms: 2 • Bathrooms: 2
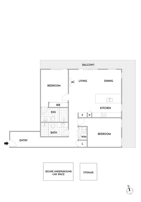
Description: Positioned in the vibrant heart of Highett, this stylish apartment delivers a perfect balance of modern living and everyday convenience. Featuring two well-proportioned bedrooms, two bathrooms, a huge balcony ideal for outdoor entertaining, and a secure car space, it's thoughtfully designed to offer a comfortable, low-maintenance lifestyle. Inside, a bright open-plan living and dining area, complemented by modern finishes, creates a welcoming space for both relaxing and entertaining. The kitchen is stylish and functional, featuring quality appliances, generous storage, and a seamless connection to the living area. Both bedrooms are spacious, with the main enjoying its own ensuite, while a second bathroom adds practicality for guests or family. For year-round comfort, split system heating and cooling is installed in the living area and both bedrooms. The location further enhances the appeal, with Highett Village just a short walk away, offering a variety of cafés, shops, and local amenities. Nearby, Highett Reserve provides plenty of green space for outdoor activities, such as a casual stroll, a picnic, or time with family. Enjoy being close to well-regarded schools such as St Agnes' Primary School and Highett Secondary College. Commuting is effortless, with Highett Railway Station just a short walk away, offering convenient access to Melbourne's CBD and beyond. PHOTO ID REQUIRED AT ALL OPEN HOMES. Please note: Ray White The Bayside Group has exclusive leasing rights to this property. We do not advertise on Gumtree, Facebook Marketplace, or any other social media platforms. Please be aware of scammers - 2Apply application codes and links will be provided upon physical inspection of the property only.
Location
Address
204/2A Major Street, Highett VIC 3190
City
Highett
Features and Finishes
None
Legal Notice
Our comprehensive database is populated by our meticulous research and analysis of public data. MirrorRealEstate strives for accuracy and we make every effort to verify the information. However, MirrorRealEstate is not liable for the use or misuse of the site's information. The information displayed on MirrorRealEstate.com is for reference only.