2055 Upper Middle Road 205
Property Details
2
2
Vacant
Description
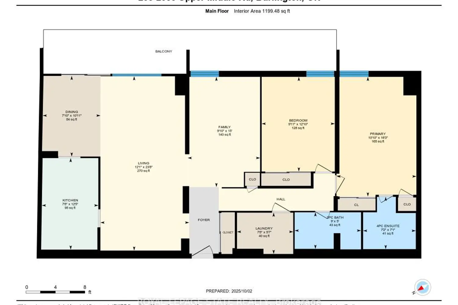
Welcome to a condo that truly feels like home. Offering 1,200 sq. ft. of bright, thoughtfully designed living space, this 2-bedroom plus den suite delivers the size and layout rarely found in newer builds.Enjoy sun-filled rooms with southern exposure, an open-concept living and dining area, and a cheerful kitchen with space for a dinette. Two spacious bedrooms and a versatile den provide flexibility for a home office, family room, or guest space. With two full bathrooms, in-suite laundry, and plenty of storage, comfort and convenience are built in.Residents enjoy fantastic amenities including two fitness centres, tennis court, library, games room, workshop, craft room, guest suite, and an outdoor pool (under construction).Ideally located close to shopping, transit, and major highways - this is easy, spacious living in a welcoming community.
Location
Address
2055 Upper Middle Road 205
City
Burlington
Features and Finishes
None
Legal Notice
Our comprehensive database is populated by our meticulous research and analysis of public data. MirrorRealEstate strives for accuracy and we make every effort to verify the information. However, MirrorRealEstate is not liable for the use or misuse of the site's information. The information displayed on MirrorRealEstate.com is for reference only.