26 Cayman Brac, Aliso Viejo, CA 92656
Property Details
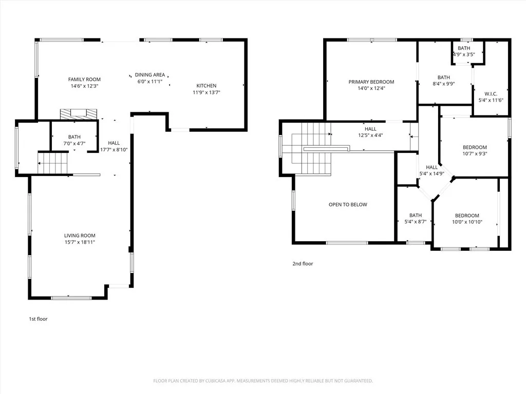
3
Description
Welcome to this beautifully maintained turnkey three-bedroom, 2.5-bath home located in the highly desirable Key West neighborhood. Designed with comfort and style in mind, this home features an open floor plan that seamlessly connects the living, dining, and kitchen areas - perfect for both everyday living and entertaining. A permitted addition enhances the living room, adding valuable square footage and creating an inviting space filled with natural light. The home offers abundant storage throughout, including an extra-large walk-in closet in the spacious primary suite. Step outside to a peaceful and private backyard, ideal for relaxing or hosting gatherings with family and friends or practicing your putting skills on your private putting greens. With its thoughtful upgrades, functional layout, and prime location, this home truly offers the best of indoor and outdoor living. With very low HOA dues, no Mello-Roos, Close proximity to award winning schools, shopping, and freeways, this home offers the perfect blend of comfort, design and location.
PROPERTY DETAILS: Square Feet: 1851 | Bathrooms: 3
INTERIOR FEATURES: • Appliances: Gas Cooktop, Dishwasher • Cooling: Central Air • Common Walls: No Common Walls • Fireplaces: Family Room • Security: Carbon Monoxide Detector(s), Smoke Detector(s) • Additional Interior Features: Open Floorplan
EXTERIOR FEATURES: • Parking: 2 Garage Spaces, 2 Parking Spaces, Attached Garage. • Patio: Patio, Covered • Pool Description: None • Additional Exterior/Lot Features: Patio Back Yard
LISTING AGENT: Agent: Tod B. Bishop | Office: Broadmoor Realty | Phone: 7142879706 | Email: [email protected]
LISTING INFORMATION: MLS#: PW26082562 | Status: FOR SALE
Location
Address
26 Cayman Brac
City
Aliso Viejo
Features and Finishes
Interior Features:
• Appliances: Gas Cooktop, Dishwasher
• Cooling: Central Air
• Common Walls: No Common Walls
• Fireplaces: Family Room
• Security: Carbon Monoxide Detector(s), Smoke Detector(s)
• Additional Interior Features: Open Floorplan
Exterior Features:
• Parking: 2 Garage Spaces, 2 Parking Spaces, Attached Garage.
• Patio: Patio, Covered
• Pool Description: None
• Additional Exterior/Lot Features: Patio Back Yard
Legal Notice
Our comprehensive database is populated by our meticulous research and analysis of public data. MirrorRealEstate strives for accuracy and we make every effort to verify the information. However, MirrorRealEstate is not liable for the use or misuse of the site's information. The information displayed on MirrorRealEstate.com is for reference only.