212 Soldiers Point Road, Salamander Bay NSW 2317
Property Details
4
2
House
Description
Property Details: • Type: House
• Bedrooms: 4 • Bathrooms: 2
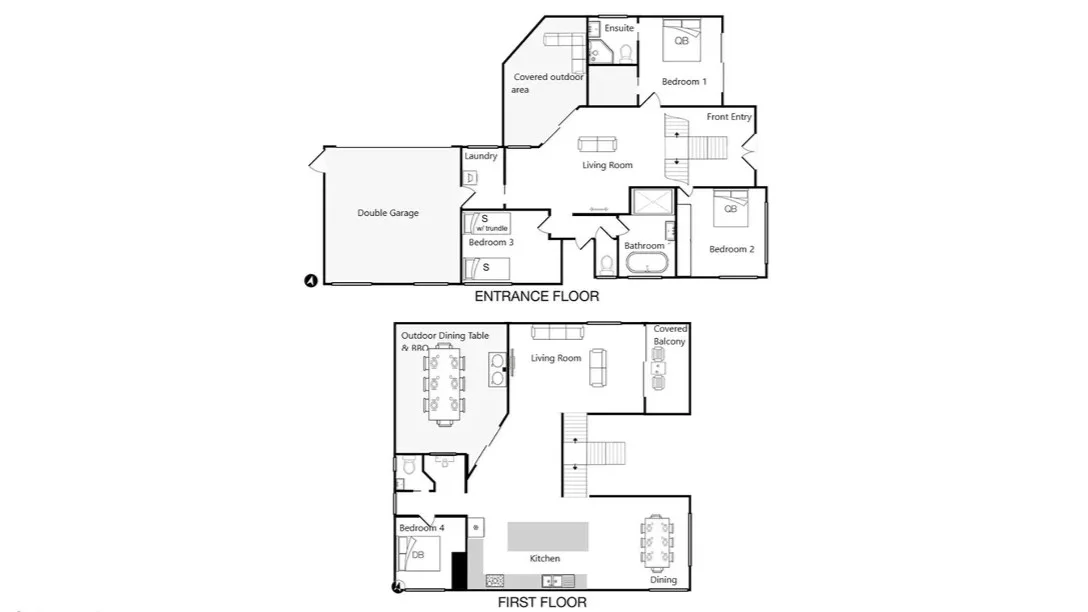
Description: Standing out in the market, 212 Soldiers Point Road is ready for its new family to move straight in and begin enjoying the Bay lifestyle. No moving truck or unpacking of boxes required! Featuring high end finishes, flexible living spaces, and a fantastic location, this beautiful home exudes effortless beach-side living. Features include: - Stunning chef's kitchen open to the main living spaces, - Distinct dining and lounge zones on the first floor, - Separate lounge space on the ground floor, - Four generous bedrooms, - Two spacious bathrooms (ensuite and main), - Separate study nook, - Air conditioning throughout. - Multiple alfresco spaces including the front balcony, rear entertaining deck, large covered and private ground floor area, - Leafy enclosed rear yard, - Spear point pump for bore water, - Double garage with internal access. *Third garage space is excluded from the lease. Complete with every modern convenience you are seeking with space to spare and a beautiful coastal aesthetic, this generous family home is a must to inspect! Located just 400m from your local grocer, cafe, butcher, bakery, and other specialty stores, this property is also in the catchment zone for the very popular Soldiers Point Public School. A short 2 minute drive will have you at the Bannisters Resort with the Cheeky Dog Pub, Julio's Mexican, and renowned Rick Stein Seafood Restaurant, as well as the Soldiers Point Bowling Club. The boat ramp is also just 5 minutes away. Register now or call Phillipa Marshall on 02 4984 2000. Disclaimer: All information contained herein is gathered from sources we deem reliable. However, we cannot guarantee its accuracy and act as a messenger only in passing on the details. Interested parties should rely on their own enquiries. Some of our properties are marketed from time to time without a price guide at the vendors request. This website may have filtered the property into a price bracket for website functionality purposes. Any personal information given to us during the course of the campaign will be kept on our database for follow up and to market other services and opportunities unless instructed in writing. https://www.prd.com.au/portstephens/privacy-terms-conditions/
Location
Address
212 Soldiers Point Road, Salamander Bay NSW 2317
City
Salamander Bay
Features and Finishes
None
Legal Notice
Our comprehensive database is populated by our meticulous research and analysis of public data. MirrorRealEstate strives for accuracy and we make every effort to verify the information. However, MirrorRealEstate is not liable for the use or misuse of the site's information. The information displayed on MirrorRealEstate.com is for reference only.