7080 Iverson Pl, Paso Robles, CA 93446
Property Details
2
None
None
None
Description
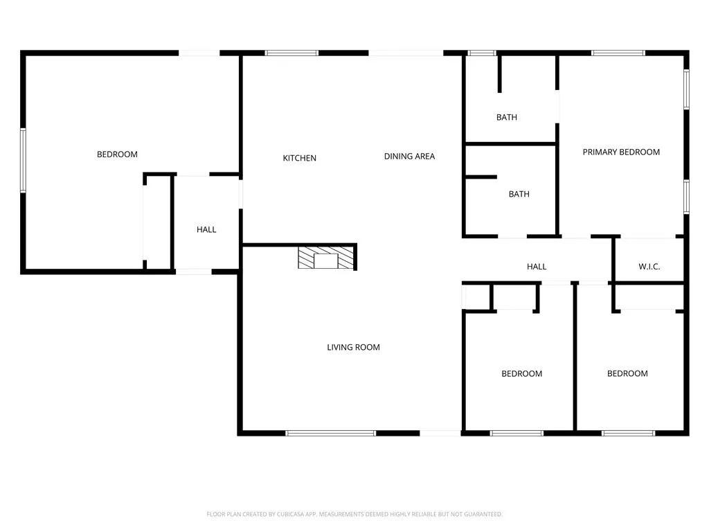
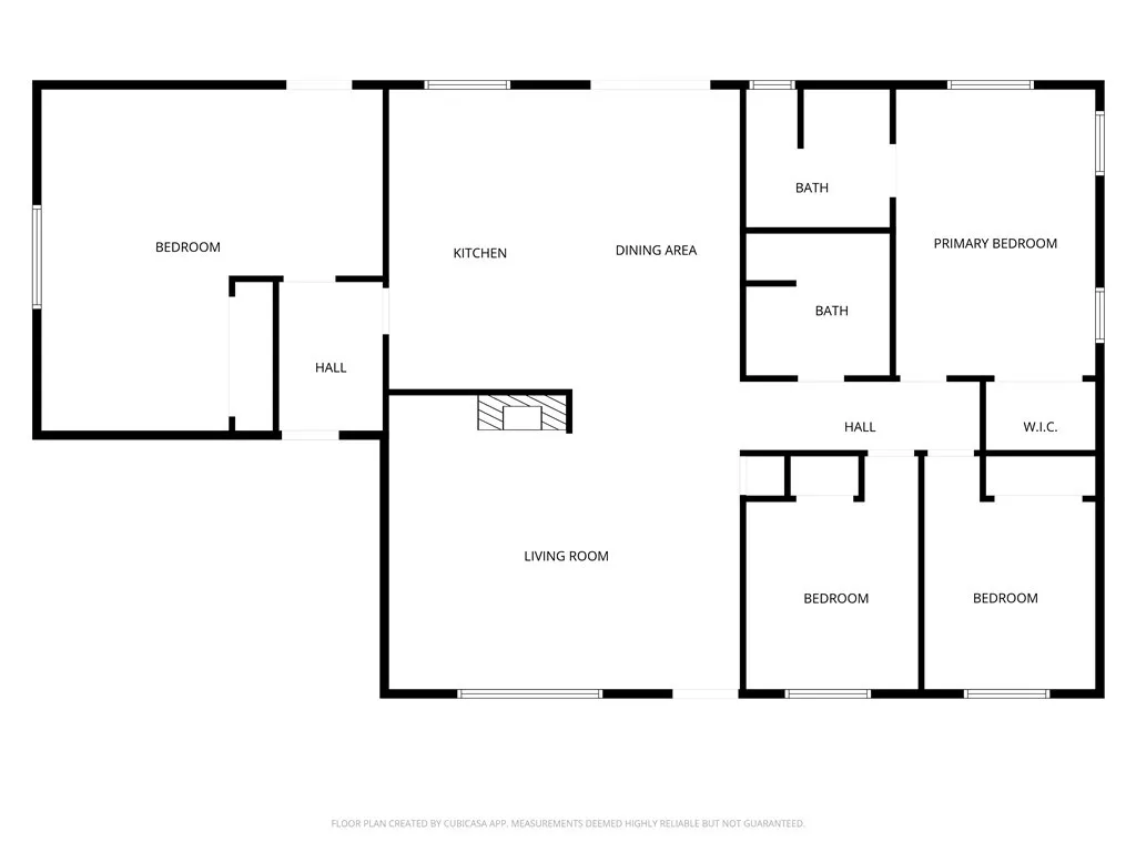
Nestled in the heart of Paso Robles wine country, this beautifully updated 4-bedroom, 2-bathroom home offers 1,835 square feet of comfortable living on a sprawling 1-acre lot. This property combines space, privacy, and scenic charm in one exceptional package. Step inside to discover a fresh, modern interior featuring new luxury vinyl plank flooring and fresh paint throughout. The recently upgraded kitchen shines with stylish finishes and functionality, while the updated bathrooms add a touch of contemporary comfort. Designed for both relaxation and entertaining, the home features a cozy wood-burning fireplace and a flowing layout filled with natural light. The spacious 4th bedroom provides flexibility for family living, guests, home office, or gym room. Outside, enjoy the peaceful beauty of vineyard-backed views - your own slice of Central Coast serenity all just minutes from downtown Paso Robles wineries, dining, and amenities. This is wine country living at its finest - don't miss your opportunity to call it home. *Adjacent 1-acre lot to the west is owned by same owner and open for offers as well.*
PROPERTY DETAILS: Square Feet: 2235 | Bathrooms: 2
INTERIOR FEATURES: • Appliances: Range, Disposal, Microwave, Tankless Water Heater, Dishwasher • Flooring: Vinyl • Cooling: Central Air • Heating: Central • Common Walls: No Common Walls • Doors/Windows: Sliding Doors, Double Pane Windows • Fireplaces: Wood Burning • Additional Interior Features: Breakfast Bar, High Ceilings, Stone Counters
EXTERIOR FEATURES: • Parking: 2 Garage Spaces, 2 Parking Spaces, Driveway, Garage Door Opener, Attached Garage. • Patio: Patio, Covered • Roof: Shingle • Pool Description: None • Spa: None • Lot View: Vineyard • Fence: Wood, Pipe • Structural Condition: Updated/Remodeled • Additional Exterior/Lot Features: Patio
LISTING AGENT: Agent: Patrick McCandless | Office: Oak Shores Realty | Phone: 8054437777 | Email: [email protected]
LISTING INFORMATION: MLS#: NS26054957 | Status: FOR SALE
Location
Address
7080 Iverson Pl
City
Paso Robles
Features and Finishes
Interior Features:
• Appliances: Range, Disposal, Microwave, Tankless Water Heater, Dishwasher
• Flooring: Vinyl
• Cooling: Central Air
• Heating: Central
• Common Walls: No Common Walls
• Doors/Windows: Sliding Doors, Double Pane Windows
• Fireplaces: Wood Burning
• Additional Interior Features: Breakfast Bar, High Ceilings, Stone Counters
Exterior Features:
• Parking: 2 Garage Spaces, 2 Parking Spaces, Driveway, Garage Door Opener, Attached Garage.
• Patio: Patio, Covered
• Roof: Shingle
• Pool Description: None
• Spa: None
• Lot View: Vineyard
• Fence: Wood, Pipe
• Structural Condition: Updated/Remodeled
• Additional Exterior/Lot Features: Patio
Legal Notice
Our comprehensive database is populated by our meticulous research and analysis of public data. MirrorRealEstate strives for accuracy and we make every effort to verify the information. However, MirrorRealEstate is not liable for the use or misuse of the site's information. The information displayed on MirrorRealEstate.com is for reference only.