217 Dublin Avenue, Spring Mountain QLD 4300
Property Details
5
4
House
Description
Property Details: • Type: House
• Bedrooms: 5 • Bathrooms: 4
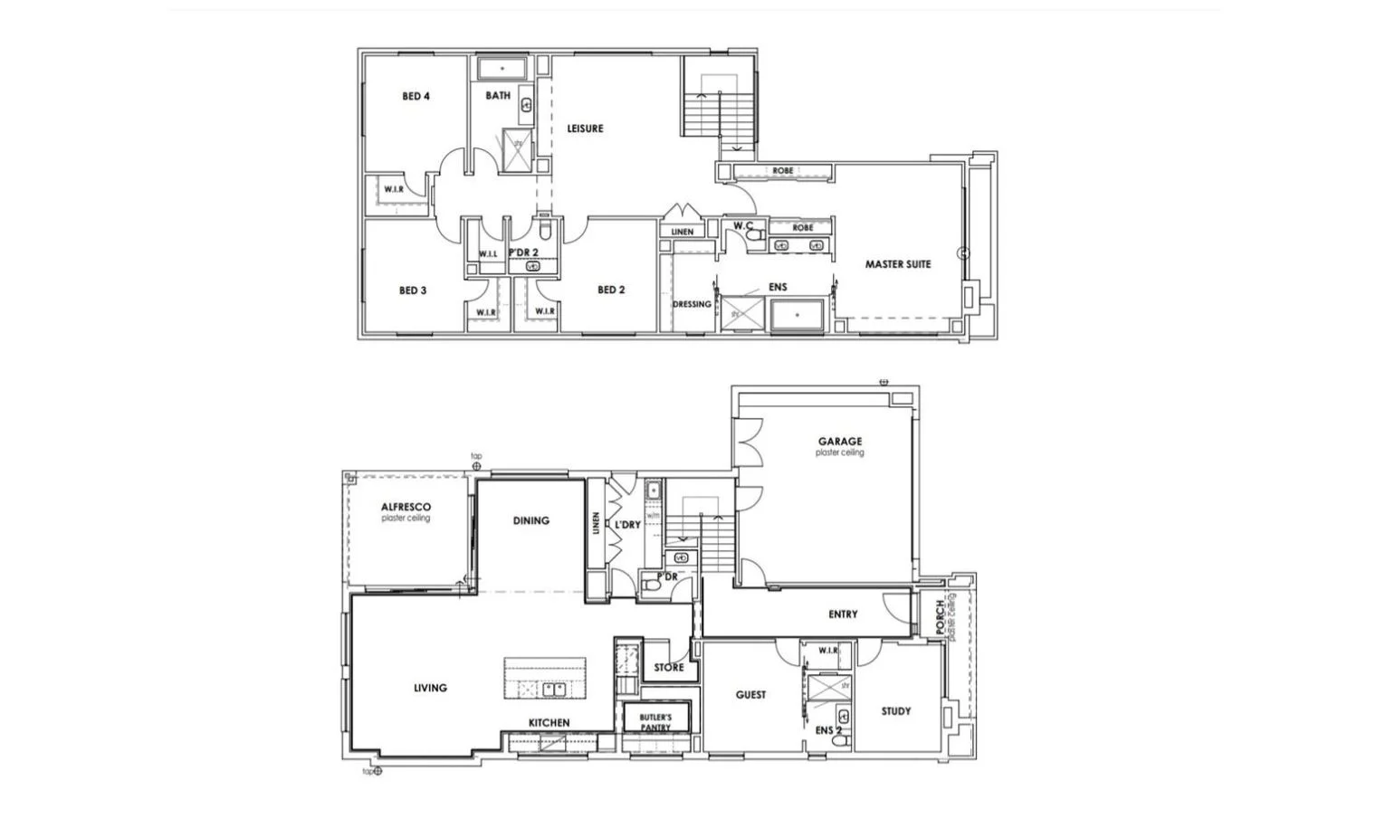
Description: Welcome to 217 Dublin Avenue, Spring Mountain - a beautifully presented residence offering modern comfort, functional design, and an enviable lifestyle in one of the area's most sought-after pockets. Perfectly positioned in a quiet, family-friendly street, this contemporary home combines spacious interiors with seamless indoor-outdoor living. Designed for both relaxed family life and effortless entertaining, the home showcases light-filled open-plan living areas, a stylish kitchen at the heart of the home, and a private outdoor space ideal for entertaining. - Modern kitchen with quality appliances and ample storage - Butlers pantry - Ducted air con - Spacious open-plan living with a stacker door leading to the patio - Carpet upstairs lounge room - Study or multi-purpose room - Huge master bedroom with ensuite and walk-in robe - Four additional bedrooms with walk-in robes - Fifth bedroom with ensuite and walk-in robe - Powder room - Priavte outdoor entertaining area - Double garage with floor-to-ceiling storage cupboards - Water usage charges apply TO VIEW: Submit an email enquiry to organsie a suitable date and time to inspect the home.
Location
Address
217 Dublin Avenue, Spring Mountain QLD 4300
City
Spring Mountain
Features and Finishes
None
Legal Notice
Our comprehensive database is populated by our meticulous research and analysis of public data. MirrorRealEstate strives for accuracy and we make every effort to verify the information. However, MirrorRealEstate is not liable for the use or misuse of the site's information. The information displayed on MirrorRealEstate.com is for reference only.