21A Alcester Road, Studley B80 7AG

GBP 260000 For Sale

Property Details

Property Type

Ask agent

Description

Property Details: • Type: Ask agent • Tenure: N/A • Floor Area: N/A

Key Features: • Auction: 10.12.2024 09:00 • Self-contained one bedroom flat to rear producing £5,940 per annum • Fully refurbished showroom premises • Potential to create a second apartment owing to the layouts at minimal expense (subject to planning) • Single garage to rear • EPC Rating: B and E

Location: • Nearest Station: Redditch Station • Distance to Station: 3.1 miles

Agent Information: • Address: 17 Regan Way, Toton, Nottingham, NG9 6RZ

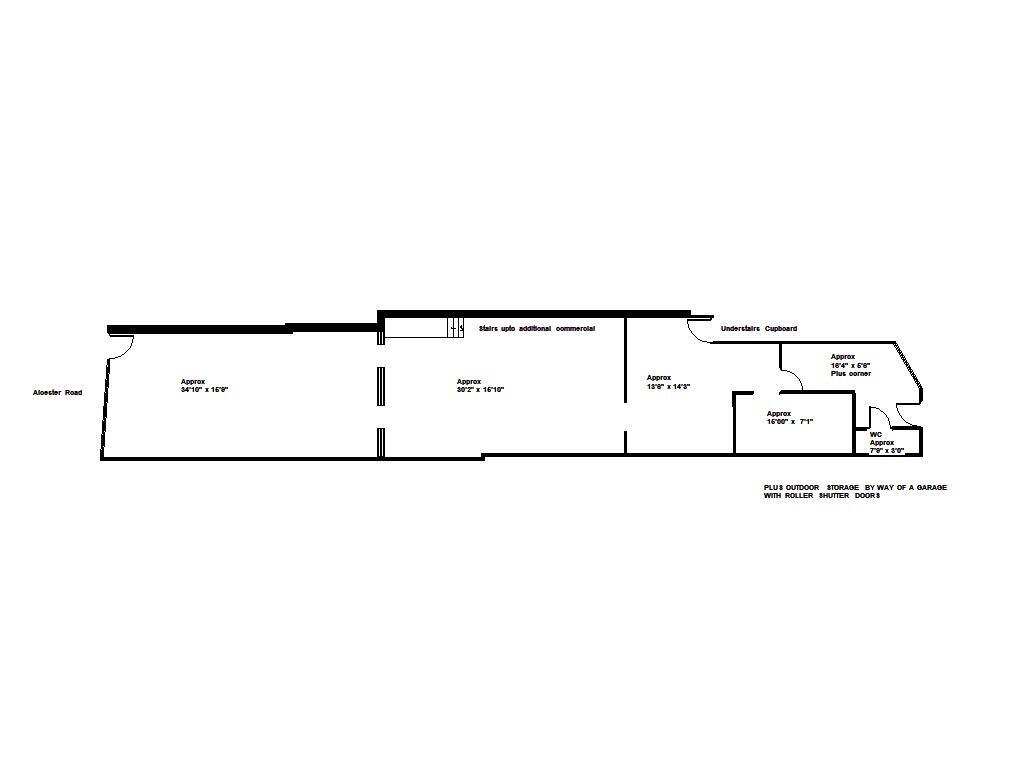
Full Description: For sale by Unconditional Online Auction.A substantial mid-terraced retail unit with residential accommodation to the first floor. The property benefits from plate glass display window to front elevation with the unit internally sub-divided to create three showrooms to ground floor and stores. There is a further retail area to the front of the unit on the first floor.

Floors throughout are of solid construction with ceramic tile covering. The property has a suspended ceiling with air conditioning units installed to the front two showrooms.

To the first floor (21A) is a self-contained one bedroomed flat occupied on a 12 month Assured Shorthold Tenancy subject to a rental of £495 per calendar month. This is accessed from the rear of the property. We are advised by the seller that the tenant has been in occupation for some time with rent always paid promptly.

We are informed by the sellers solicitor that with regards to the retail unit forming part of the Property, KLR Interiors Limited is currently in occupation pursuant to a lease which expires on 28 June 2039. However, the retail unit will be sold with vacant possession and a Deed of Surrender of this lease will be entered into on or before completion of the sale.

We feel there is certainly scope to reconfigure and utilise the additional retail area at the front of the premises on the first floor to create a second residential dwelling with separate access possible by creating a corridor leading to the rear of the property. The sellers advise that this was originally a residential dwelling in circa 2017.

The accommodation has been refurbished by the current owners to a high standard. We noted UPVC double glazing, modern fire doors, air conditioning and sunken lights. We are advised the property received a rewire recently.

To the rear of the property is a garage with roller shutter and access for the residential apartment above.

Location The premises are located fronting the main Alcester Road through the heart of Studley village. The main centre of Redditch lies some 3 miles to the north. All local amenities are in the immediate vicinity including; shopping, transport and schooling, etc.

We are advised that rates payable are circa £800 per annum.

We have not been provided with a copy of the Tenancy Agreement. Prospective buyers are advised to make all necessary independent enquiries prior to placing their bid as this will be binding.Flood Risk Surface Water - Very Low.Building Construction Cavity wall, as built, no insulation (assumed) - Information taken from EPC.Broadband (estimated speeds) Standard 23 mbps shows as available in this locationMobile Signal EE, O2, Vodaphone and Three show as available in this location.Satellite and Cable TV Availability Sky, Virgin and BT show as available in this location.Council Tax Band The council tax band for the flat is A.Tenure: FreeholdEPC Rating: B and ETerms: Auction Details:

The sale of this property will take place on the stated date by way of Auction Event and is being sold under an Unconditional sale type.

Binding contracts of sale will be exchanged at the point of sale.

All sales are subject to SDL Property Auctions Buyers Terms. Properties located in Scotland will be subject to applicable Scottish law.

Auction Deposit and Fees:

The following deposits and non- refundable auctioneers fees apply:

• 5% deposit (subject to a minimum of £5,000)

• Buyers Fee of 4.8% of the purchase price (subject to a minimum of £6,000 inc. VAT).

The Buyers Fee does not contribute to the purchase price, however it will be taken into account when calculating the Stamp Duty Land Tax for the property (known as Land and Buildings Transaction Tax for properties located in Scotland), because it forms part of the chargeable consideration for the property.

There may be additional fees listed in the Special Conditions of Sale, which will be available to view within the Legal Pack. You must read the Legal Pack carefully before bidding.

Additional Information:

For full details about all auction methods and sale types please refer to the Auction Conduct Guide which can be viewed on the SDL Property Auctions home page.

This guide includes details on the auction registration process, your payment obligations and how to view the Legal Pack (and any applicable Home Report for residential Scottish properties).

Guide Price & Reserve Price:

Each property sold is subject to a Reserve Price. The Reserve Price will be within + or - 10% of the Guide Price. The Guide Price is issued solely as a guide so that a buyer can consider whether or not to pursue their interest. A full definition can be found within the Buyers Terms.

Location

Address

21A Alcester Road, Studley B80 7AG

City

21A Alcester Road

Features and Finishes

Auction: 10.12.2024 09:00, Self-contained one bedroom flat to rear producing £5,940 per annum, Fully refurbished showroom premises, Potential to create a second apartment owing to the layouts at minimal expense (subject to planning), Single garage to rear, EPC Rating: B and E

Legal Notice

Our comprehensive database is populated by our meticulous research and analysis of public data. MirrorRealEstate strives for accuracy and we make every effort to verify the information. However, MirrorRealEstate is not liable for the use or misuse of the site's information. The information displayed on MirrorRealEstate.com is for reference only.

Real Estate Broker
SDL Property Auctions - Commercial, Nationwide
Brokerage
SDL Property Auctions - Commercial, Nationwide
Top Tags
940 per annum
Likes

0

Views

78

This website uses cookies to ensure you get the best experience. Learn more