22&24 Albert Road, Carnegie VIC 3163
Property Details
4
3
Townhouse
Description
Property Details: • Type: Townhouse
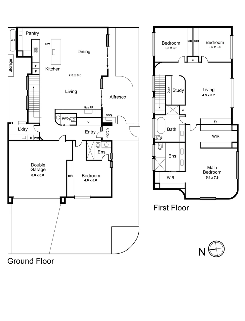
• Bedrooms: 4 • Bathrooms: 3
Description: 22 asking $2,400,000-$2,500,000 24 asking $2,400,000-$2,500,000 Like nothing you've seen before.... ground-breaking Packer Park luxury is ready to break ground now for completion May 2026! Set to transform the Carnegie real estate landscape with a design that is timeless and groundbreaking in equal measure, this new luxury home offering from Jabbour Building Group showcases the leading-edge architect design in an unparalleled pair of 37 square individual streetfront homes. Going beyond luxury with an immensely functional four bedroom plus home-office, 3.5 bathroom, dual zone design, each home will rise over two uncompromising levels with principal living-dining flowing seamlessly to al fresco entertaining, and a vast first-floor lounge centering the upper-level. Designed to adapt to a big, blended or multi-generational family with a plush treetop parental-domain plus ground-floor guest or in-law quarters, each design provides 5 Star suite accommodation, plus a well-zoned children's wing and clever home-office. Curated in the latest warm organic tones with light Oak floors, coastal Oak veneer cabinetry, and subtle brushed-gold Nero tapware, these leading-edge homes will lead the way in family luxury. Elite Italian appliance kitchen will be wrapped in rich natural marble (including through full-wall splashback), bathrooms (including two private ensuites) will be cocooned in porcelain tiles, and a sculptural glass-enclosed floating-stair will rise between the levels. Custom appointed with this leading builder's uncompromising focus; every luxury is specified here; including linear-slot zoned climate-control zoned, alarm and video-intercom & a double auto-garage behind tall auto-gates. A showcase of the architect's innovation and expertise with soaring vertical planes established by an immense entry-door and reinforced by floor-to-ceiling double-glazing, full-height doors, the homes' luminous spaces will tower with up to 3m ceilings...and make unforgettable architectural statements at every turn. Fronting each street-address in gently curvaceous style with streamlined render, bold interlock cladding, and seamlessly integrated double garages, each home will be wrapped in greenery with vines falling gently from high-set planter-boxes and tall 1.8m brick fencing sheltering a creative landscape. Located for an active life within equally easy reach of Packer Park and Carnegie Swimming Pool, these dynamic new designs are located for an unparallelled family lifestyle within a walk of Ormond station and Kilvington Grammar School. A minute to Glenhuntly's cosmopolitan shopping and Koornang Rd's vibrant restaurants, the homes are just minutes to Monash University's Caulfield Campus, a walk to the bus to the Clayton campus, and in-Zone for in-demand McKinnon Primary School. For further information on this ground-breaking offering contact Angelo Nikitas at Buxton Bentleigh on 0412 161 877 or the Buxton Office on 9563 9933. ALL ENQUIRIES MUST INCLUDE A CONTACT NUMBER. Please Note: Internal photos are from builders most recent projects.
Location
Address
22&24 Albert Road, Carnegie VIC 3163
City
Carnegie
Features and Finishes
None
Legal Notice
Our comprehensive database is populated by our meticulous research and analysis of public data. MirrorRealEstate strives for accuracy and we make every effort to verify the information. However, MirrorRealEstate is not liable for the use or misuse of the site's information. The information displayed on MirrorRealEstate.com is for reference only.